Продажа

Все фото (3)
2к квартира ул. Михаила Максимовича 32
- Добавить в избранное
-
Поделиться ссылкой
Тип рынка
Первичный рынок
Улица
ул. Михаила Максимовича 32
Количество комнат
2
Этаж
16 Этаж
Этажность
23 этажный дом
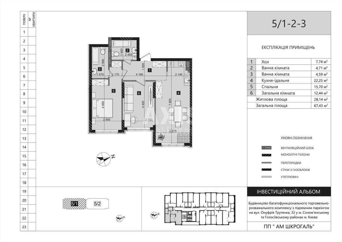
Общая площадь
67 м2
Общее состояние
Без ремонта
Цена:
4 044 380 грн.
97 140 USD
Описание объекта
ЖК Liko-Grad Perfect Town, 2 комнатная квартира. Площадь - 67,43 м². Окна во двор. После строителей. Хорошая планировка. Развитая инфраструктура. Хорошая локация.
Дополнительная информация