2к квартира вул. Львівська 15

  • Святошинський район вул. Львівська 15
  • Код: SF-3-298-781
  • Добавлено: 31.03.2026
  • Додати в обране
Тип ринку
Первинний ринок
Вулиця
вул. Львівська 15
Кількість кімнат
2
Поверх
0 Поверх
Поверховість
25 поверховий будинок
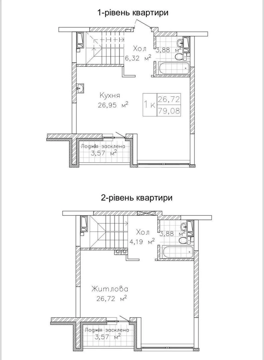
Загальна площа
78 м2
Загальний стан
Без ремонту
Ціна:
5 043 994 грн.
115 000 USD
Опис об'єкту

ЖК Святобор, 2 кімнатна квартира. Всі вікна дивляться у двір. Двір тихий, закритий від авто та сторонніх людей. На першому рівні розташовано: санвузол, велика кухня-гостьова, балкон та сходи на другий поверх. На другому поверсі: дві житлові кімнати, балкон , санвузол та гардеробна. Комплекс має зручну транспортну розвязку: до станціі метро Святошино та Житомирська -10 хвилин пішки, до станціі метро Хрещатик -15 хвилин на метро, до проспекту Перемоги - 5 хвилин пішки. Друга лінія від проспекту Перемоги, що робить будинок тихим та захищеним від шуму дороги. Поряд- в пішій доступності, знаходиться : продуктові магазини, кавярні, НП, лікарні, парки, дитячі садочки та дві державні школи. Місце де розташований Святобор - спальний мікрорайон, на перетині двух паркових зон.

Схожі пропозиції