2k apartment vul. L'vivs'ka 15

  • Sviatoshynskyi District vul. L'vivs'ka 15
  • Code: SF-3-298-781
  • Added by: 31.03.2026
  • Add to favorites
Market type
Primary market
Street
vul. L'vivs'ka 15
Number of rooms
2
Floor
0 Floor
Number of storeys
25 storey house
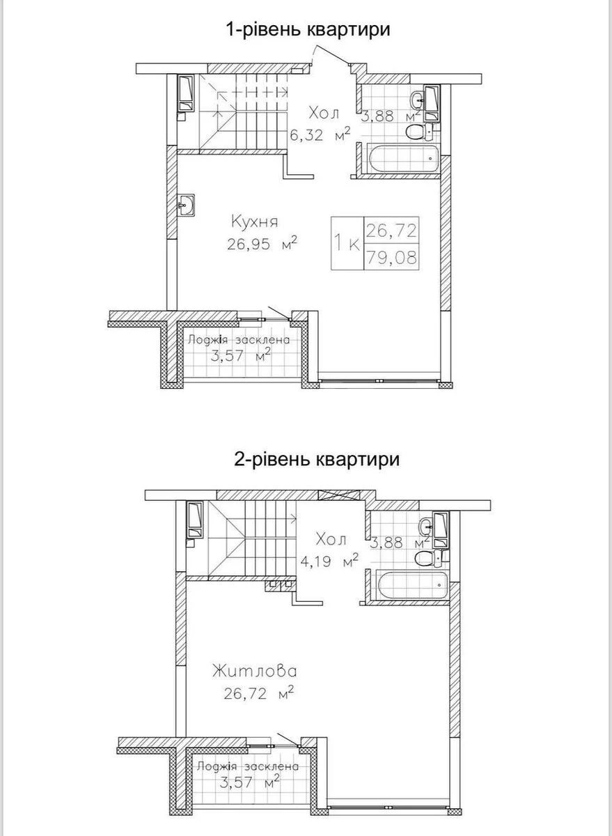
Total area
78 м2
General state
Without repair
Price:
5 043 994 UAH
115 000 USD
Description of the object

Svyatobor residential complex, 2-bedroom flat. All windows face the courtyard. The courtyard is quiet and sheltered from traffic and passers-by. The ground floor comprises: a bathroom, a large kitchen-diner, a balcony and a staircase leading to the first floor. On the second floor: two living rooms, a balcony, a bathroom and a walk-in wardrobe. The complex has convenient transport links: a 10-minute walk to Svyatoshino and Zhytomyrska metro stations, a 15-minute metro ride to Khreshchatyk metro station, and a 5-minute walk to Peremohy Avenue. It is situated on the second line from Peremohy Avenue, making the building quiet and sheltered from road noise. Within walking distance, you will find: grocery shops, cafés, a pharmacy, hospitals, parks, nurseries and two state schools. Svyatobor is situated in a residential neighbourhood, at the intersection of two park areas.

Similar offers