2к квартира ул. Львовская 15

  • Святошинский район ул. Львовская 15
  • Код: SF-3-298-781
  • Добавлено: 31.03.2026
  • Добавить в избранное
Тип рынка
Первичный рынок
Улица
ул. Львовская 15
Количество комнат
2
Этаж
0 Этаж
Этажность
25 этажный дом
Общая площадь
78 м2
Общее состояние
Без ремонта
Цена:
5 043 994 грн.
115 000 USD
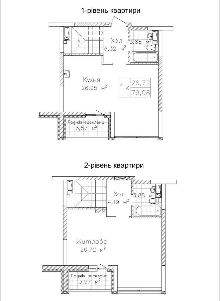
Описание объекта

ЖК «Святобор», 2-комнатная квартира. Все окна выходят во двор. Двор тихий, закрытый от автомобилей и посторонних людей. На первом уровне расположены: санузел, большая кухня-гостиная, балкон и лестница на второй этаж. На втором этаже: две жилые комнаты, балкон, санузел и гардеробная. Комплекс имеет удобную транспортную развязку: до станций метро «Святошино» и «Житомирская» — 10 минут пешком, до станции метро «Крещатик» — 15 минут на метро, до проспекта Победы — 5 минут пешком. Вторая линия от проспекта Победы, что делает дом тихим и защищенным от шума дороги. Рядом, в пешей доступности, находятся: продуктовые магазины, кафе, НП, больницы, парки, детские сады и две государственные школы. Место, где расположен Святобор — спальный микрорайон, на пересечении двух парковых зон.

Похожие предложения