2к квартира вул. Кам'янська 127

  • Дарницький район вул. Кам'янська 127
  • Код: SF-3-290-561
  • Добавлено: 26.04.2026
  • Додати в обране
Тип ринку
Первинний ринок
Вулиця
вул. Кам'янська 127
Кількість кімнат
2
Поверх
8 Поверх
Поверховість
12 поверховий будинок
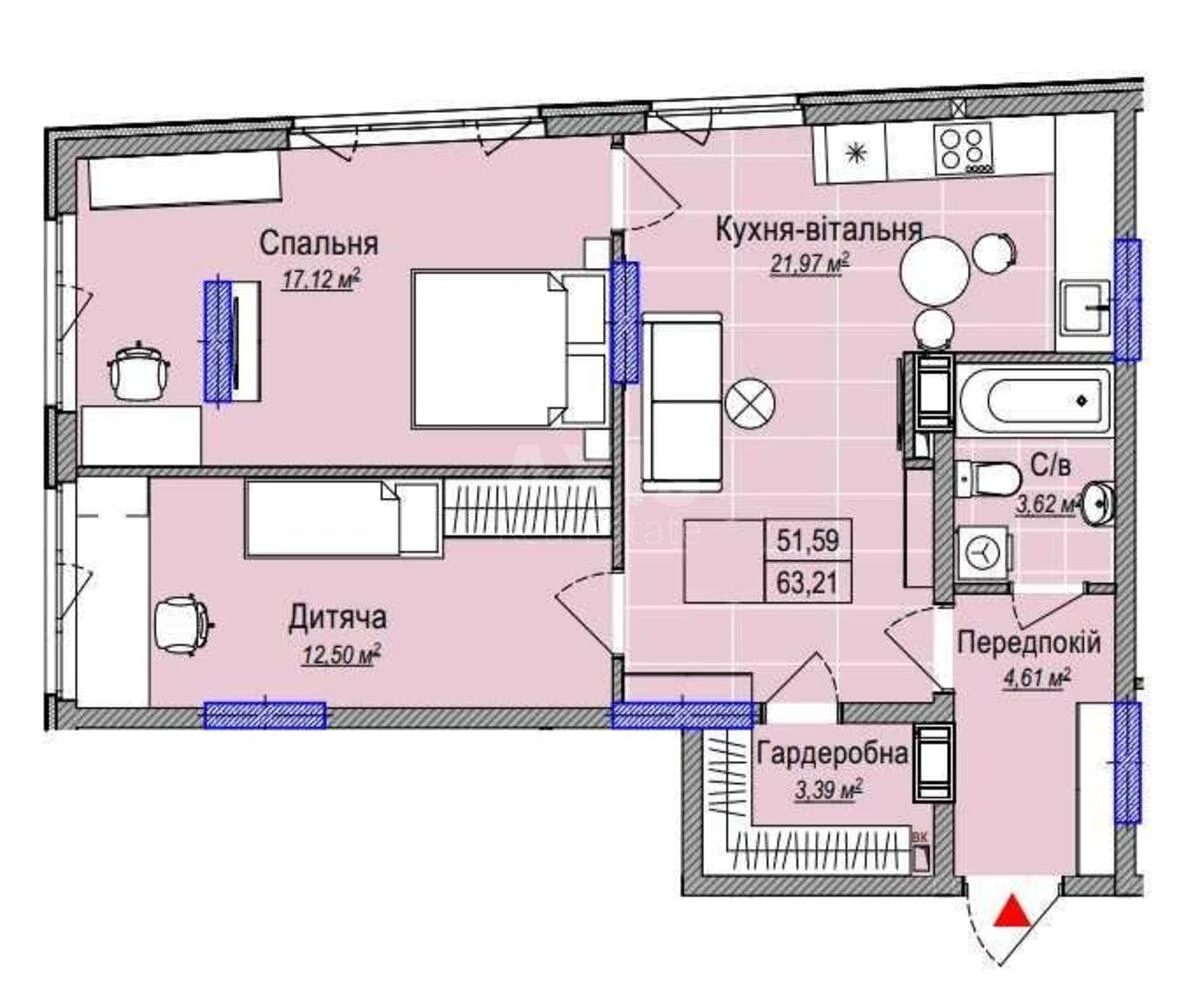
Загальна площа
63 м2
Загальний стан
Без ремонту
Ціна:
2 686 162 грн.
61 000 USD
Опис об'єкту

2 кімнатна квартира. З індивідуальним електричним опаленням, підготовлена під чистове оздоблення. Виконано штукатурні роботи, залита стяжка підлоги, встановлена інсталяція, виконано сантехнічну розводку труб. Передбачено комунікації для встановлення кондиціонерів. Будинок підключений до чотирьох сучасних оптоволоконних провайдерів, що забезпечує стабільний і швидкісний інтернет. Розташування з відмінною інфраструктурою: у пішій доступності дві станції метро, торгові центри, школи, дитячі садки та «Парк партизанської слави». Зручний виїзд із Києва без заторів.

Схожі пропозиції