2к квартира ул. Каменская 127

  • Дарницкий район ул. Каменская 127
  • Код: SF-3-290-561
  • Добавлено: 26.04.2026
  • Добавить в избранное
Тип рынка
Первичный рынок
Улица
ул. Каменская 127
Количество комнат
2
Этаж
8 Этаж
Этажность
12 этажный дом
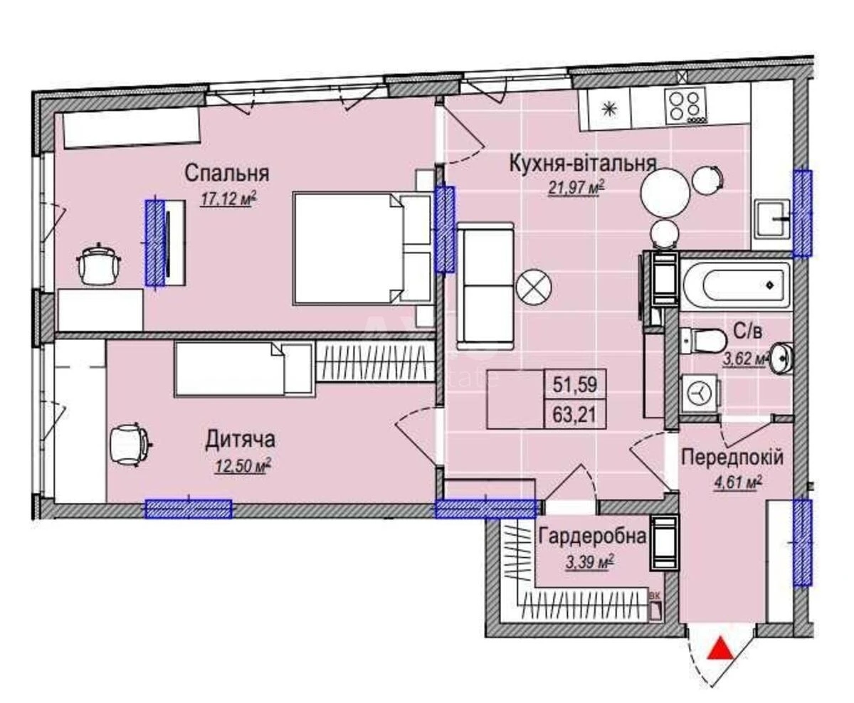
Общая площадь
63 м2
Общее состояние
Без ремонта
Цена:
2 686 162 грн.
61 000 USD
Описание объекта

2-комнатная квартира. С индивидуальным электрическим отоплением, подготовлена под чистовую отделку. Выполнены штукатурные работы, залита стяжка пола, установлена инсталляция, выполнена сантехническая разводка труб. Предусмотрены коммуникации для установки кондиционеров. Дом подключен к четырем современным оптоволоконным провайдерам, что обеспечивает стабильный и скоростной интернет. Расположение с отличной инфраструктурой: в пешей доступности две станции метро, торговые центры, школы, детские сады и «Парк партизанской славы». Удобный выезд из Киева без пробок.

Похожие предложения