2k apartment vul. Kamianska 127

  • Darnytskyi District vul. Kamianska 127
  • Code: SF-3-290-561
  • Added by: 26.04.2026
  • Add to favorites
Market type
Primary market
Street
vul. Kamianska 127
Number of rooms
2
Floor
8 Floor
Number of storeys
12 storey house
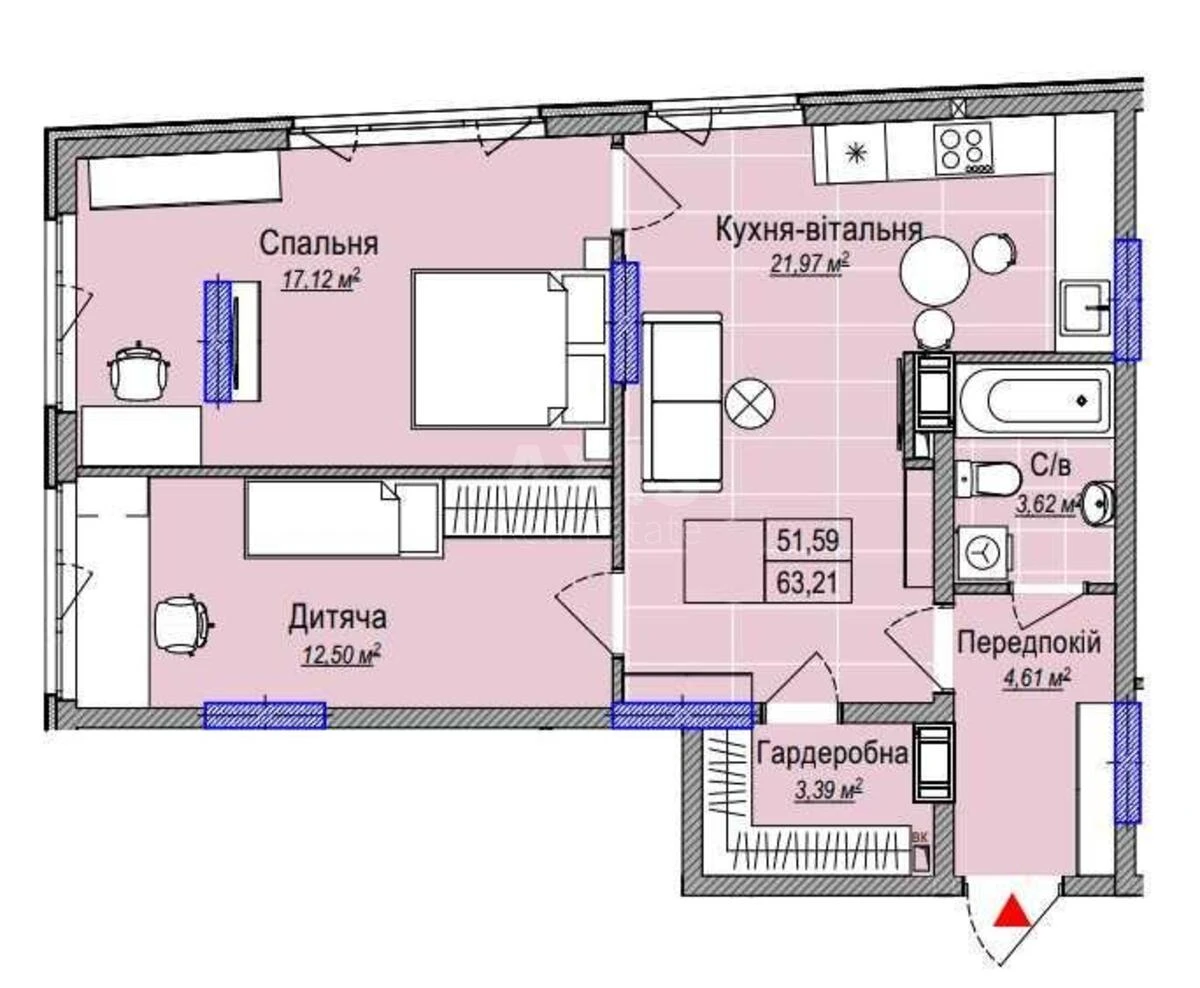
Total area
63 м2
General state
Without repair
Price:
2 686 162 UAH
61 000 USD
Description of the object

2-room apartment. With individual electric heating, prepared for final finishing. Plastering work has been completed, floor screed has been poured, installation has been completed, and plumbing has been installed. Communications for the installation of air conditioners are provided. The building is connected to four modern fibre optic providers, ensuring stable and high-speed internet. Location with excellent infrastructure: within walking distance of two metro stations, shopping centres, schools, kindergartens and the Park of Partisan Glory. Convenient exit from Kyiv without traffic jams.

Similar offers