2к квартира вул. Івана Виговського 10Л

  • Шевченківський район вул. Івана Виговського 10Л
  • Код: SF-3-305-684
  • Добавлено: 17.04.2026
  • Додати в обране
Тип ринку
Первинний ринок
Вулиця
вул. Івана Виговського 10Л
Кількість кімнат
2
Поверх
20 Поверх
Поверховість
22 поверховий будинок
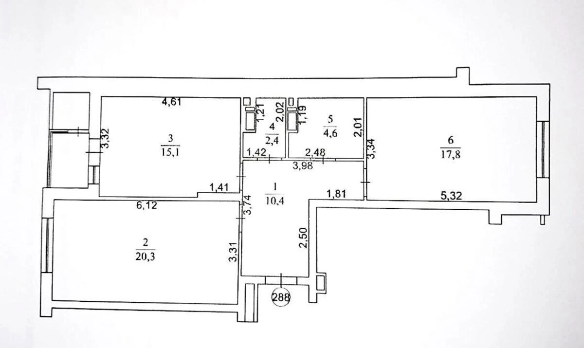
Загальна площа
73 м2
Загальний стан
Без ремонту
Ціна:
5 219 753 грн.
120 000 USD
Опис об'єкту

ЖК «Сирецькі сади», 2 кімнатна квартира. Двостороннє планування квартири включає дві кімнати та кухню з виходом на засклений балкон, доповнений маленьким відкритим балконом із західною орієнтацією. Вікна відкривають вид на затишний двір та мікрорайони Нивки і Виноградар. Санвузол роздільний. Квартира має від забудовника: лазерну стяжку підлоги, гіпсову штукатурку стін, встановлені радіатори, металопластикові двокамерні вітражні склопакети, броньовані двері, розведення води до санвузлів, а також виконане електропідключення. Будинок утеплений поверх газоблоку, що забезпечує енергоефективність. У квартирі встановлені лічильники на тепло, воду та електроенергію (однозональний). Житловий комплекс 'Сирецькі Сади' має власну котельню, що забезпечує автономне теплопостачання. Будинок побудований з дотриманням сучасних стандартів енергоефективності. Житловий комплекс 'Сирецькі Сади' має власну котельню, що забезпечує автономне теплопостачання. Будинок побудований з дотриманням сучасних стандартів енергоефективності.

Схожі пропозиції