2к квартира ул. Выговского Ивана 10Л

  • Шевченковский район ул. Выговского Ивана 10Л
  • Код: SF-3-305-684
  • Добавлено: 17.04.2026
  • Добавить в избранное
Тип рынка
Первичный рынок
Улица
ул. Выговского Ивана 10Л
Количество комнат
2
Этаж
20 Этаж
Этажность
22 этажный дом
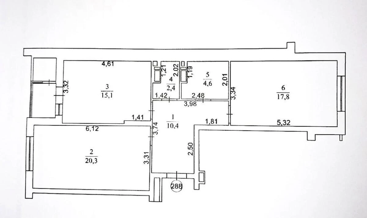
Общая площадь
73 м2
Общее состояние
Без ремонта
Цена:
5 219 753 грн.
120 000 USD
Описание объекта

ЖК «Сирецкие сады», 2-комнатная квартира. Двусторонняя планировка квартиры включает две комнаты и кухню с выходом на застекленный балкон, дополненный небольшим открытым балконом с западной ориентацией. Из окон открывается вид на уютный двор и микрорайоны Нывки и Виноградарь. Санузел раздельный. Квартира имеет от застройщика: лазерную стяжку пола, гипсовую штукатурку стен, установленные радиаторы, металлопластиковые двухкамерные витражные стеклопакеты, бронированную дверь, разводку воды к санузлам, а также выполненное электроподключение. Дом утеплен поверх газоблока, что обеспечивает энергоэффективность. В квартире установлены счетчики на тепло, воду и электроэнергию (однозонный). Жилой комплекс «Сирецкие Сады» имеет собственную котельную, что обеспечивает автономное теплоснабжение. Дом построен с соблюдением современных стандартов энергоэффективности. Жилой комплекс «Сирецкие Сады» имеет собственную котельную, что обеспечивает автономное теплоснабжение. Дом построен с соблюдением современных стандартов энергоэффективности.

Похожие предложения