2k apartment vul. Grechka Marshala 10Л

  • Shevchenkivskyi District vul. Grechka Marshala 10Л
  • Code: SF-3-305-684
  • Added by: 17.04.2026
  • Add to favorites
Market type
Primary market
Street
vul. Grechka Marshala 10Л
Number of rooms
2
Floor
20 Floor
Number of storeys
22 storey house
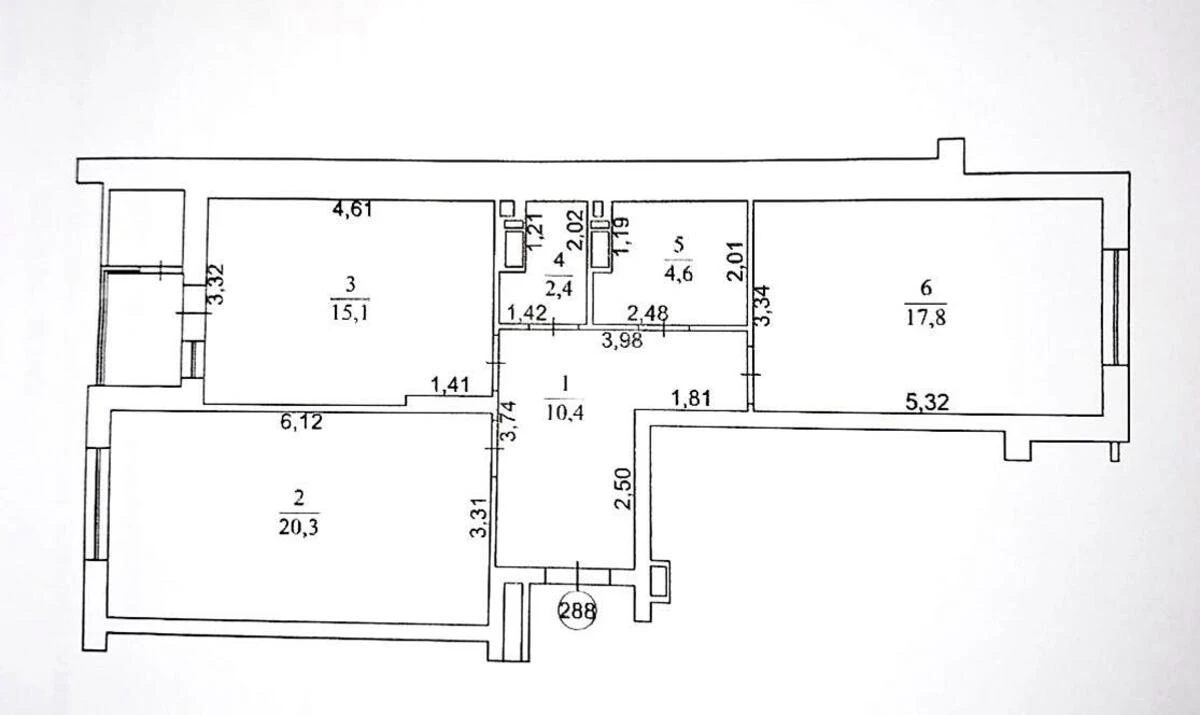
Total area
73 м2
General state
Without repair
Price:
5 219 753 UAH
120 000 USD
Description of the object

‘Syretski Sady’ residential complex, 2-bedroom flat. The dual-aspect layout comprises two rooms and a kitchen opening onto a glazed balcony, complemented by a small open balcony facing west. The windows offer views of a cosy courtyard and the Nyvky and Vynohradar neighbourhoods. The bathroom is separate. The flat comes from the developer with: laser-levelled screed flooring, plastered walls, fitted radiators, double-glazed metal-plastic windows, a security door, water connections to the bathrooms, and electrical wiring. The building is insulated above the aerated concrete blocks, ensuring energy efficiency. The flat is fitted with meters for heating, water and electricity (single-zone). The “Syretski Sady” residential complex has its own boiler room, providing autonomous heating. The building has been constructed in accordance with modern energy efficiency standards. The "Syretski Sady" residential complex has its own boiler room, providing independent heating. The building was constructed in accordance with modern energy efficiency standards.

Similar offers