1к квартира шосе Наддніпрянське 2А

  • Голосіївський район шосе Столичне 1А
  • Код: SF-3-298-769
  • Добавлено: 04.04.2026
  • Додати в обране
Тип ринку
Первинний ринок
Вулиця
шосе Столичне 1А
Кількість кімнат
1
Поверх
14 Поверх
Поверховість
26 поверховий будинок
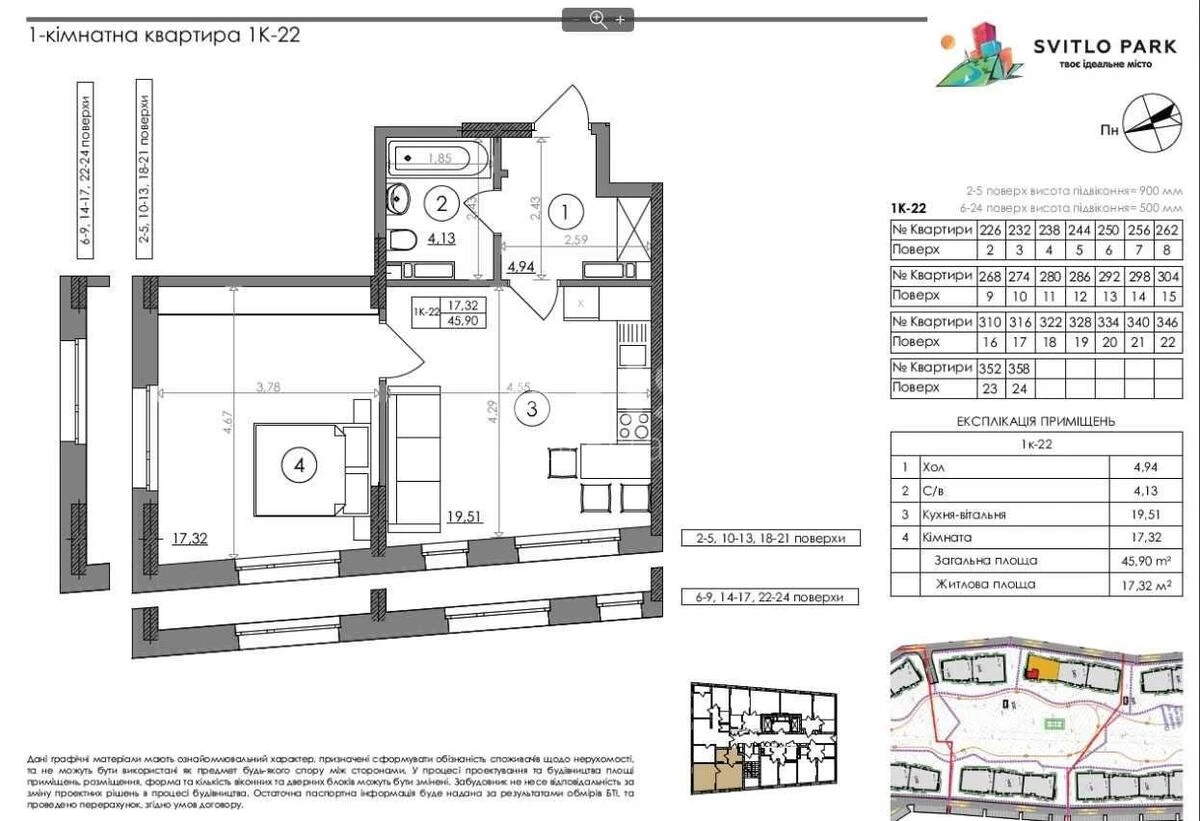
Загальна площа
45 м2
Загальний стан
Без ремонту
Ціна:
3 068 064 грн.
70 000 USD
Опис об'єкту

ЖК Svitlo Park, 1 кімнатна квартира. Квартира має великий метраж, та дуже простора. Кухня-вітальня з двома панорамними вікнами - 19,51 м2, спальня також має два панорамні вікна -17 м2 та коридор з нішею під шафу-купе чи гардероб. Стан - після будівельників. Виконані всі чорнові роботи. Вікна засклені, встановлені вхідні двері - металеві, надійні та стильні, не потребуютьь заміни. Виконана стяжка підлоги під лазер, під стяжкою розведено водопостачання ,опалення, підключено радіатори з терморегуляторами. В комплексі передбачена своя інфраструктура : пропускна система цілодобової охорони, магазини продуктові, аптеки, спортивний клуб, ресторан, дитячі садочки та державна школа, медичний заклад; зона відпочинку з дітьми, прогулянкова зона, паркінг підземний та гостьовий. Комплекс обслуговує обслуговуюча компанія - Комфорт Таун.

Схожі пропозиції