1к квартира шоссе Столичное Один А

  • Голосеевский район шоссе Столичное Один А
  • Код: SF-3-298-769
  • Добавлено: 04.04.2026
  • Добавить в избранное
Тип рынка
Первичный рынок
Улица
шоссе Столичное Один А
Количество комнат
1
Этаж
14 Этаж
Этажность
26 этажный дом
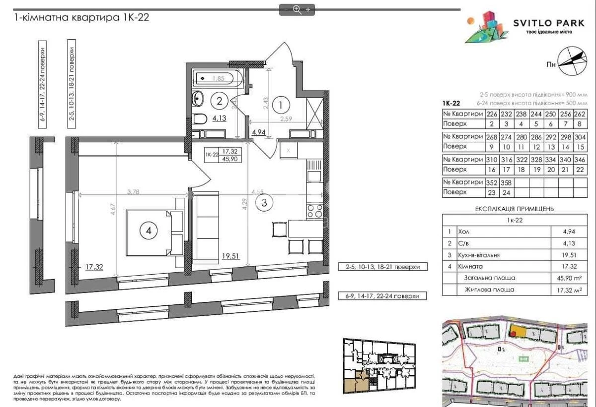
Общая площадь
45 м2
Общее состояние
Без ремонта
Цена:
3 068 064 грн.
70 000 USD
Описание объекта

ЖК «Свитло Парк», 1-комнатная квартира. Квартира имеет большую площадь и очень просторна. Кухня-гостиная с двумя панорамными окнами — 19,51 м², спальня также имеет два панорамных окна — 17 м², а также прихожая с нишей под шкаф-купе или гардероб. Состояние — после строителей. Выполнены все черновые работы. Окна застеклены, установлены входные двери — металлические, надежные и стильные, не требуют замены. Выполнена стяжка пола под лазер, под стяжкой разведено водоснабжение, отопление, подключены радиаторы с терморегуляторами. В комплексе предусмотрена собственная инфраструктура: пропускная система круглосуточной охраны, продуктовые магазины, аптеки, спортивный клуб, ресторан, детские сады и государственная школа, медицинское учреждение; зона отдыха с детьми, прогулочная зона, подземный и гостевой паркинг. Комплекс обслуживает управляющая компания - Комфорт Таун.

Похожие предложения