1k apartment shose Stolychne One A

  • Holosiivskyi District shose Stolychne One A
  • Code: SF-3-298-769
  • Added by: 04.04.2026
  • Add to favorites
Market type
Primary market
Street
shose Stolychne One A
Number of rooms
1
Floor
14 Floor
Number of storeys
26 storey house
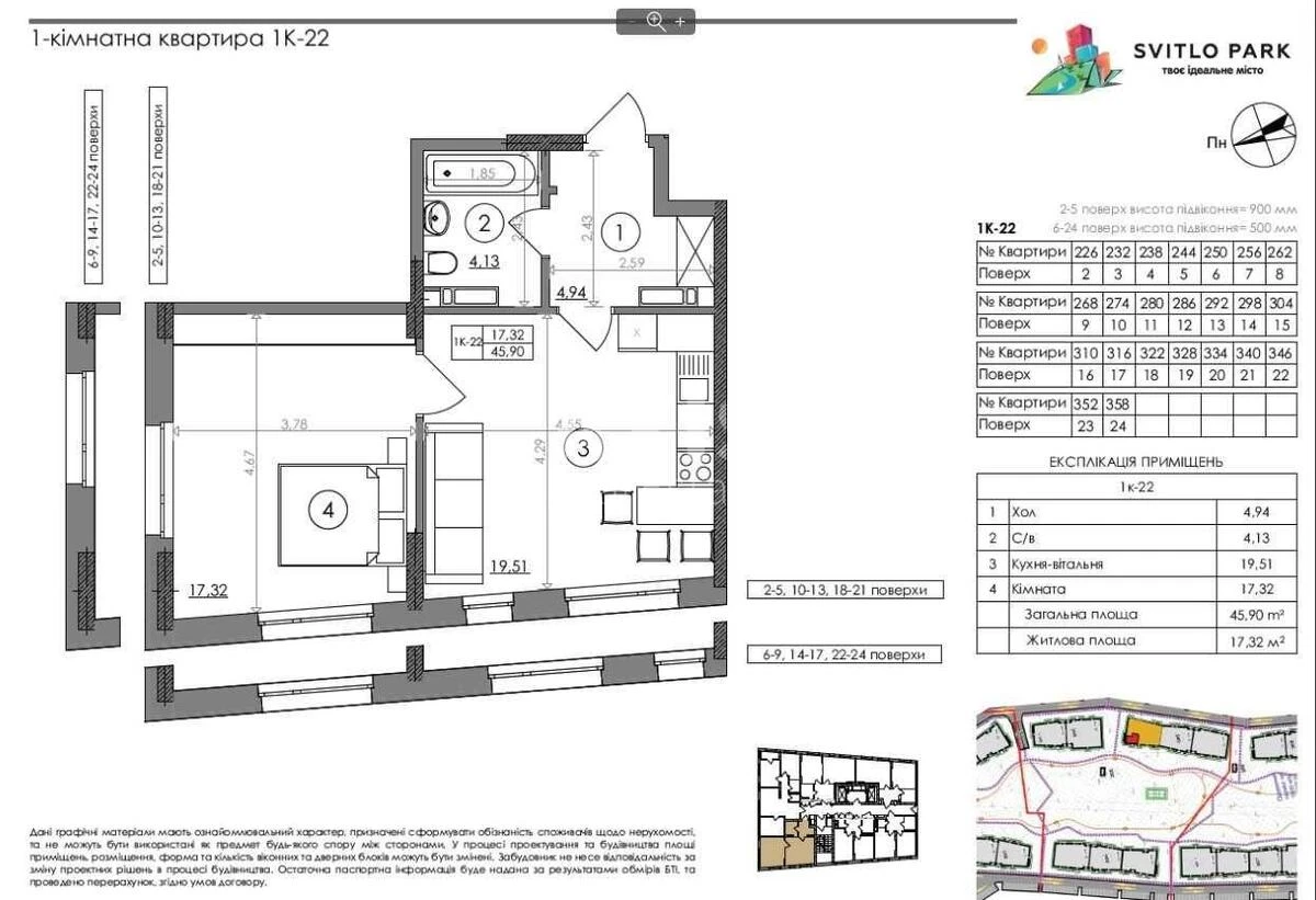
Total area
45 м2
General state
Without repair
Price:
3 068 064 UAH
70 000 USD
Description of the object

Svitlo Park residential complex, 1-bedroom flat. The flat is spacious and very airy. The open-plan kitchen-living room features two panoramic windows and measures 19.51 m², whilst the bedroom also has two panoramic windows and measures 17 m². There is a hallway with a recess suitable for a sliding-door wardrobe or a walk-in wardrobe. Condition: post-construction. All rough work has been completed. The windows are glazed, and the entrance door is metal, secure and stylish, requiring no replacement. The floor screed has been laid using laser levelling; water supply and heating pipes have been laid beneath the screed, and radiators with thermostats have been connected. The complex has its own infrastructure: a 24-hour security access system, grocery shops, pharmacies, a sports club, a restaurant, nurseries and a state school, a medical facility; a children’s play area, a walking area, underground and guest car parks. The complex is managed by the service company Comfort Town.

Similar offers