1к квартира вул. Родини Крістерів 16

  • Подільський район вул. Родини Крістерів 16
  • Код: SF-3-250-515
  • Добавлено: 30.01.2026
  • Додати в обране
Тип ринку
Первинний ринок
Вулиця
вул. Родини Крістерів 16
Кількість кімнат
1
Поверх
11 Поверх
Поверховість
16 поверховий будинок
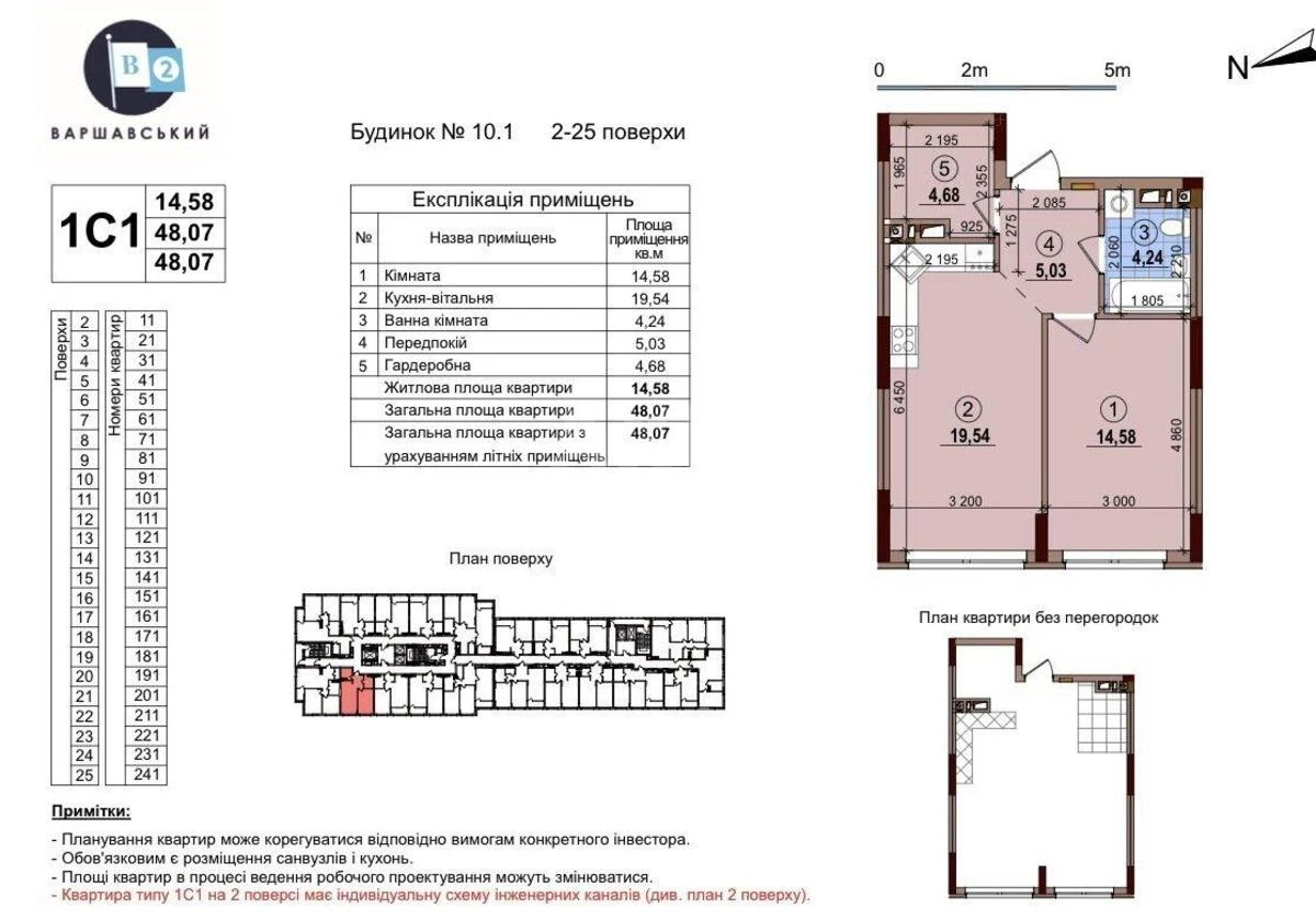
Загальна площа
48 м2
Загальний стан
З ремонтом
Ціна:
5 017 041 грн.
117 000 USD
Опис об'єкту

ЖК Варшавський 2, 1 кімнатна квартира. Світла та затишна квартира з роздільним плануванням і сучасним євроремонтом. Санвузол суміжний. Житло повністю укомплектоване меблями та якісною технікою WHIRLPOOL: варильною панеллю, духовогою шафою, мікрохвильовою піччю, холодильником, посудомийною машиною, пральною машиною. Є телевізор, кабельне, цифрове та супутникове ТБ, швидкісний інтернет і Wi-Fi. Встановлено кондиціонер, систему «розумний будинок», теплу підлогу з можливістю керування зі смартфона. На кухні — вбудовані меблі, у квартирі — просторий гардероб. Ремонт щойно завершений, квартира повністю готова до заселення. У будинку працюють ліфт і вантажний ліфт. Встановлюється резервне живлення для безперебійної роботи ліфтів та насосів. Територія охороняється, діє система пожежної сигналізації, доступ контролюється електронними картками. ЖК побудований за концепцією «місто в місті» та має власну розвинену інфраструктуру: дитячий садок, кафе, ресторан, аптеку, салон краси. Охайна, доглянута територія з озелененням, газоном та пішохідними алеями. Є зони відпочинку, велодоріжки, дитячий ігровий комплекс, спортивні майданчики: міні-поле для баскетболу та багатофункціональне міні-поле. Територія під відеоспостереженням, що забезпечує додатковий рівень безпеки.

Схожі пропозиції