1k apartment vul. Rodyny Kristeriv 16

  • Podilskyi District vul. Rodyny Kristeriv 16
  • Code: SF-3-250-515
  • Added by: 30.01.2026
  • Add to favorites
Market type
Primary market
Street
vul. Rodyny Kristeriv 16
Number of rooms
1
Floor
11 Floor
Number of storeys
16 storey house
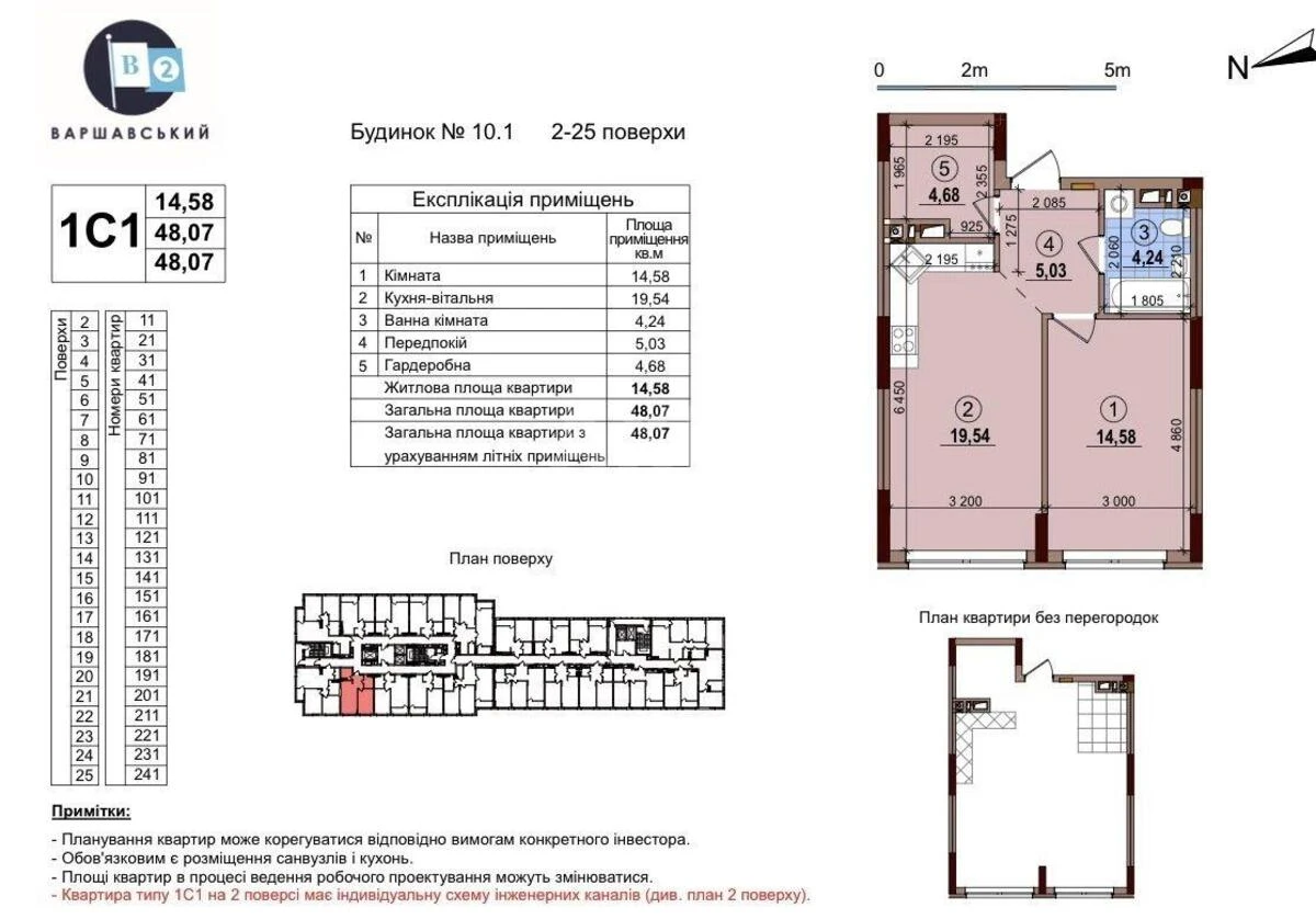
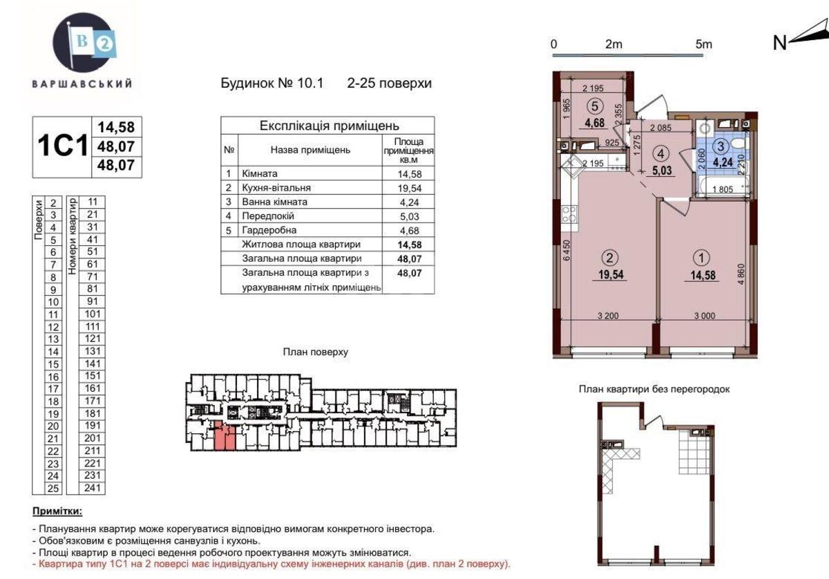
Total area
48 м2
General state
With repair
Price:
5 017 041 UAH
117 000 USD
Description of the object

Varshavsky 2 residential complex, 1 bedroom apartment. Bright and cozy apartment with a separate layout and modern renovation. The bathroom is adjacent. The apartment is fully equipped with furniture and high-quality WHIRLPOOL appliances: hob, oven, microwave, refrigerator, dishwasher, washing machine. There is a TV, cable, digital and satellite TV, high-speed Internet and Wi-Fi. There is air conditioning, a smart home system, and underfloor heating that can be controlled from a smartphone. The kitchen has built-in furniture, and the apartment has a spacious wardrobe. The renovation has just been completed, and the apartment is completely ready to move in. The building has an elevator and a freight elevator. A backup power supply is being installed for the smooth operation of elevators and pumps. The territory is guarded, there is a fire alarm system, access is controlled by electronic cards. The residential complex is built on the concept of "city within a city" and has its own developed infrastructure: kindergarten, cafe, restaurant, pharmacy, beauty salon. Neat, well-groomed territory with landscaping, lawn and pedestrian alleys. There are recreation areas, bicycle paths, a children's playground, sports grounds: a mini-basketball field and a multifunctional mini-field. The territory is under video surveillance, which provides an additional level of security.

Similar offers