1к квартира ул. Семьи Кристеров 16

  • Подольский район ул. Семьи Кристеров 16
  • Код: SF-3-250-515
  • Добавлено: 30.01.2026
  • Добавить в избранное
Тип рынка
Первичный рынок
Улица
ул. Семьи Кристеров 16
Количество комнат
1
Этаж
11 Этаж
Этажность
16 этажный дом
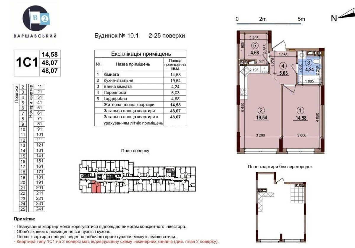
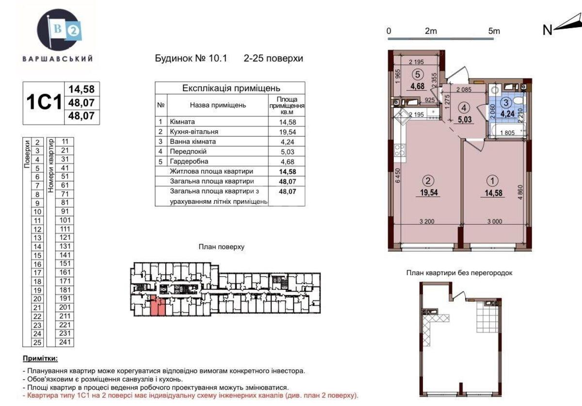
Общая площадь
48 м2
Общее состояние
С ремонтом
Цена:
5 017 041 грн.
117 000 USD
Описание объекта

ЖК Варшавский 2, 1 комнатная квартира. Светлая и уютная квартира с раздельной планировкой и современным евроремонтом. Санузел смежный смежный. Жилье полностью укомплектовано мебелью и качественной техникой WHIRLPOOL: варочной панелью, духового шкафа, микроволновой печью, холодильником, посудомоечной машиной, стиральной машиной. Есть телевизор, кабельное, цифровое и спутниковое ТВ, скоростной интернет и Wi-Fi. Установлен кондиционер, система "умный дом", теплый пол с возможностью управления со смартфона. На кухне - встроенная мебель, в квартире - просторный гардероб. Ремонт только что завершен, квартира полностью готова к заселению. В доме работают лифт и грузовой лифт. Устанавливается резервное питание для бесперебойной работы лифтов и насосов. Территория охраняется, действует система пожарной сигнализации, доступ контролируется электронными карточками. ЖК построен по концепции "город в городе" и имеет собственную развитую инфраструктуру: детский сад, кафе, ресторан, аптеку, салон красоты. Опрятная, ухоженная территория с озеленением, газоном и пешеходными аллеями. Есть зоны отдыха, велодорожки, детский игровой комплекс, спортивные площадки: мини-поле для баскетбола и многофункциональное мини-поле. Территория под видеонаблюдением, что обеспечивает дополнительный уровень безопасности.

Похожие предложения