1к квартира вул. Іоана Павла II 12

  • Печерський район вул. Іоана Павла II 12
  • Код: SF-3-246-517
  • Добавлено: 26.11.2025
  • Додати в обране
Тип ринку
Первинний ринок
Вулиця
вул. Іоана Павла II 12
Кількість кімнат
1
Поверх
6 Поверх
Поверховість
31 поверховий будинок
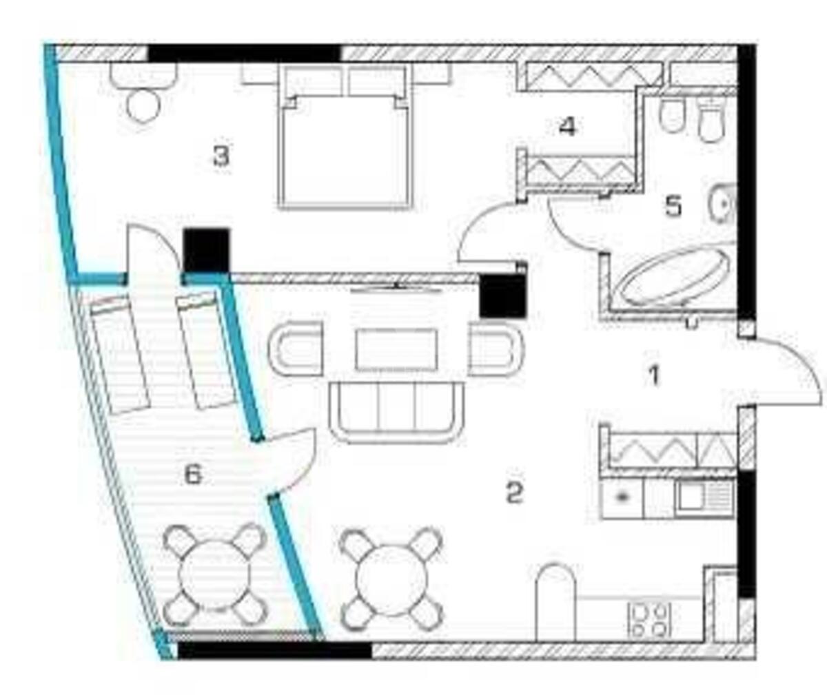
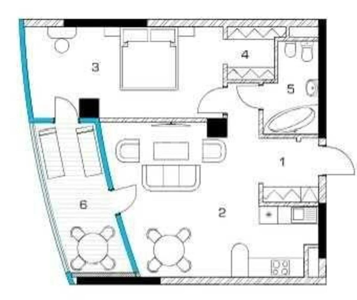
Загальна площа
62 м2
Загальний стан
Без ремонту
Ціна:
9 541 068 грн.
225 000 USD
  • AXIS Real Estate
  • AXIS Real Estate
  • AXIS Real Estate
Опис об'єкту

ЖК Taryan Towers, 1 кімнатна квартира. Планування: велика кухня-вітальня, спальня, велика ванна кімната, велика тераса. Проте перевага планувань в ЖК Taryan Tower - мінімум стін та перегородок для можливості втілити будь який дизайн з мінімальним переплануванням.

Додаткова інформація

Схожі пропозиції