1k apartment vul. Ioana Pavla II 12

  • Pecherskyi District vul. Ioana Pavla II 12
  • Code: SF-3-246-517
  • Added by: 26.11.2025
  • Add to favorites
Market type
Primary market
Street
vul. Ioana Pavla II 12
Number of rooms
1
Floor
6 Floor
Number of storeys
31 storey house
Total area
62 м2
General state
Without repair
Price:
9 541 068 UAH
225 000 USD
  • AXIS Real Estate
  • AXIS Real Estate
  • AXIS Real Estate
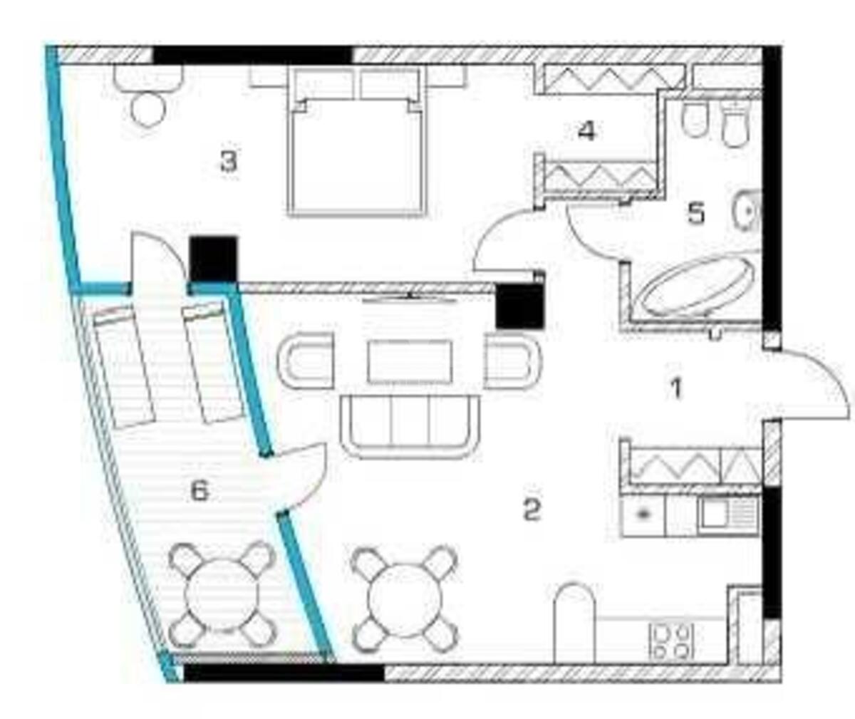
Description of the object

Taryan Towers residential complex, 1-bedroom apartment. Layout: large kitchen-living room, bedroom, large bathroom, large terrace. However, the advantage of the layouts in Taryan Tower is a minimum of walls and partitions for the possibility to realize any design with minimal redevelopment.

Additional Information

Similar offers