1к квартира ул. Иоанна Павла II 12

  • Печерский район ул. Иоанна Павла II 12
  • Код: SF-3-246-517
  • Добавлено: 26.11.2025
  • Добавить в избранное
Тип рынка
Первичный рынок
Улица
ул. Иоанна Павла II 12
Количество комнат
1
Этаж
6 Этаж
Этажность
31 этажный дом
Общая площадь
62 м2
Общее состояние
Без ремонта
Цена:
9 541 068 грн.
225 000 USD
  • AXIS Real Estate
  • AXIS Real Estate
  • AXIS Real Estate
Описание объекта

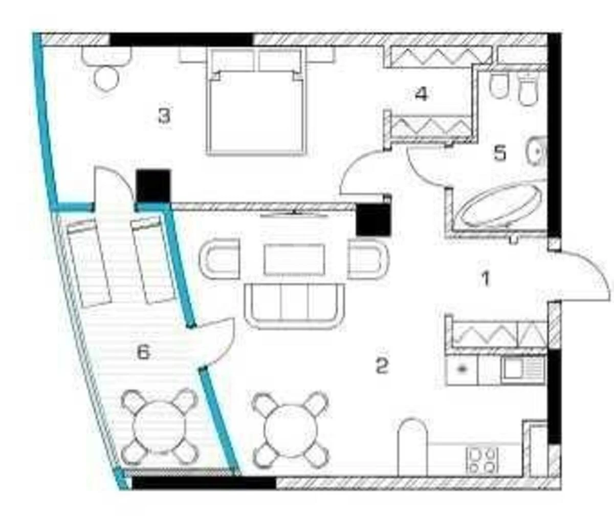
ЖК Taryan Towers, 1 комнатная квартира. Планировка: большая кухня-гостиная, спальня, большая ванная комната, большая терраса. Однако преимущество планировок в ЖК Taryan Tower - минимум стен и перегородок для возможности воплотить любой дизайн с минимальной перепланировкой.

Дополнительная информация

Похожие предложения