Trade object nab. Dniprovs'ka 20А, 108m2

  • Darnytskyi District nab. Dniprovs'ka 20А
  • Code: SC-222-819
  • Added by: 26.05.2026
  • Add to favorites
Market type
Secondary market
Street
nab. Dniprovs'ka 20А
Purpose
Trade Premise
Floor
1 Floor
Number of storeys
25 storey house
Total area
108 м2
General state
With repair
Price:
17 765 003 UAH
401 500 USD
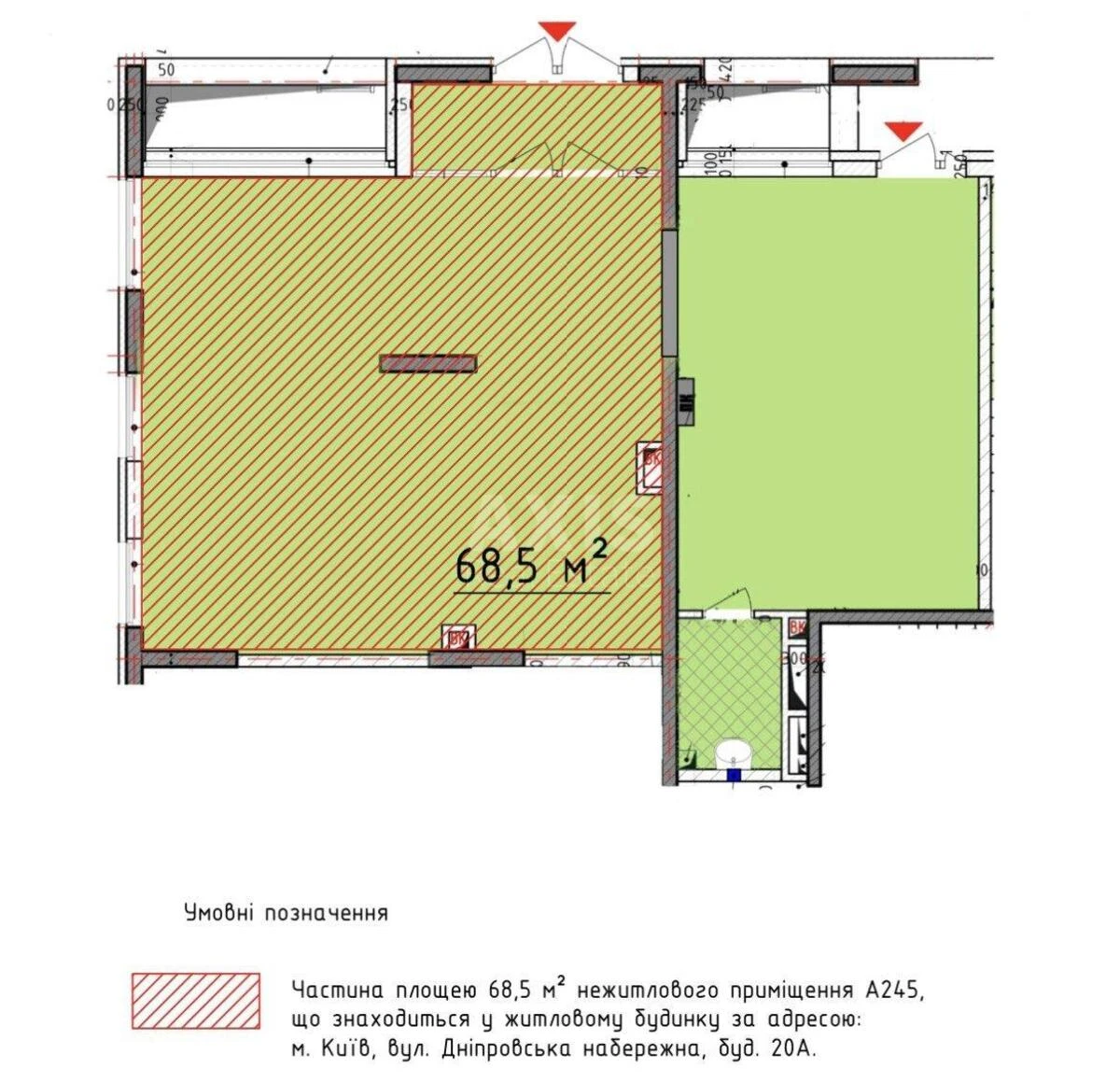
Description of the object

‘Seven’ residential complex, multi-purpose premises. Facade on the corner of the residential complex. The first building from the metro station. 200 metres from Osokorky metro station. The property is divided into two units measuring 68 m² and 40 m². Each unit has a separate entrance and a bathroom.

Similar offers