Rent
 
              
                 
                All photos (8)
              
              
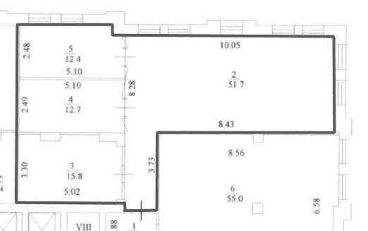
          Office vul. Vozdvyzhens'ka 45, 108m2
- Add to favorites
- 
              Share link
Market type
                Secondary market
              Street
                
                  vul. Vozdvyzhens'ka 45
              Purpose
                Office Premise
              Floor
                3 Floor
              Number of storeys
                7 storey house
                
              Total area
                108 м2
              General state
                With repair
              Price:
              72 590 UAH
              1 725 USD
            Description of the object
          Office space. 3rd floor, renovated, the premises are offered unfurnished. The layout is open-space. Area -88.6 m2, with a coefficient of total area (1.17) - 103.7 m2. There is an underground parking lot for shelter during alarms. Generator.
Additional Information
           
                   
                   
                   
                   
                   
                   
                   
                           
                           
                          