Office vul. Naberezhno-Lugova 12, 180m2

  • Podilskyi District vul. Naberezhno-Lugova 12
  • Code: RC-219-824
  • Added by: 25.02.2026
  • Add to favorites
Market type
Secondary market
Street
vul. Naberezhno-Lugova 12
Purpose
Office Premise
Floor
2 Floor
Number of storeys
5 storey house
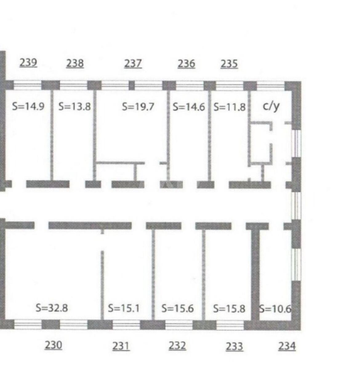
Total area
180 м2
General state
With repair
Price:
77 957 UAH
1 800 USD
Description of the object

Office space. Office in 5 minutes walk from the Taras Shevchenko metro station. 2nd floor, 180m2. 9 offices, 2 bathrooms. If necessary, you can make a redevelopment. The office has been renovated and the electrical system has been replaced. Before that, the premises were used by a charity fund, all the furniture can be removed, and vice versa - tables and chairs can be added. Heating is included in the price, only water and electricity are charged separately. There is free parking in front of the building and paid parking (6-7 thousand UAH per year). There is also a shelter and a dining room with very tasty food and affordable prices.

Similar offers