Office vul. Henerala Almazova 18/7, 159m2

  • Pecherskyi District vul. Henerala Almazova 18/7
  • Code: RC-217-295
  • Added by: 30.10.2025
  • Add to favorites
Market type
Secondary market
Street
vul. Henerala Almazova 18/7
Purpose
Office Premise
Floor
1 Floor
Number of storeys
9 storey house
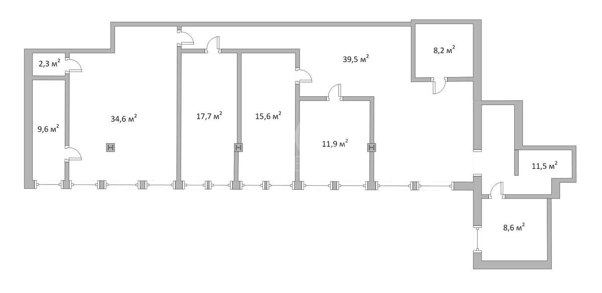
Total area
159 м2
General state
With repair
Price:
79 600 UAH
1 890 USD
  • AXIS Real Estate
  • AXIS Real Estate
  • AXIS Real Estate
Description of the object

Office space. There is a generator in the office center. There is a separate entrance group. 13 minutes walk from the Pecherskaya metro station. Each office is equipped with the necessary infrastructure for the convenience of your work, including: fast internet, air conditioning, security systems. Round-the-clock physical security of the building is provided. There are 2 passenger elevators.

Additional Information

Similar offers