Оренда
 
              
                 
                Усі фото (7)
              
              
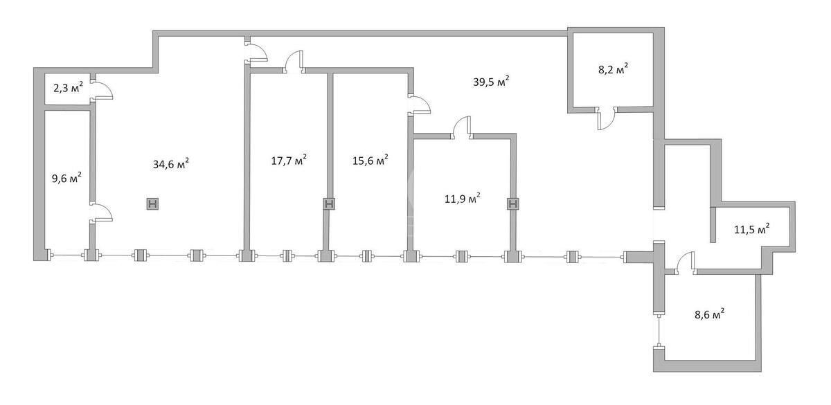
          Офіс вул. Генерала Алмазова 18/7, 159м2
- Додати в обране
- 
              Подiлитись посиланням
Тип ринку
                Вторинний ринок
              Вулиця
                
                  вул. Генерала Алмазова 18/7
              Назначение
                Офісне приміщення
              Поверх
                1 Поверх
              Поверховість
                9 поверховий будинок
                
              Загальна площа
                159 м2
              Загальний стан
                З ремонтом
              Ціна:
              79 600 грн.
              1 890 USD
            Опис об'єкту
          Офісне приміщення. В офісному центрі працює генератор. Є своя окрема вхідна група. 13 хвилин пішки від метро Печерська. Кожен офіс оснащений необхідною інфраструктурою для зручності вашої роботи, включаючи: швидкий інтернет, кондиціонування, системи безпеки. Забезпечено цілодобову фізичну охорону будівлі. Наявні 2 пасажирські ліфти.
Додаткова інформація
           
                   
                   
                   
                   
                   
                   
                           
                           
                          