Rent

All photos (18)
Office vul. Rustaveli Shota 44, 180m2
- Add to favorites
-
Share link
Market type
Secondary market
Street
vul. Rustaveli Shota 44
Purpose
Office Premise
Floor
6 Floor
Number of storeys
20 storey house
Total area
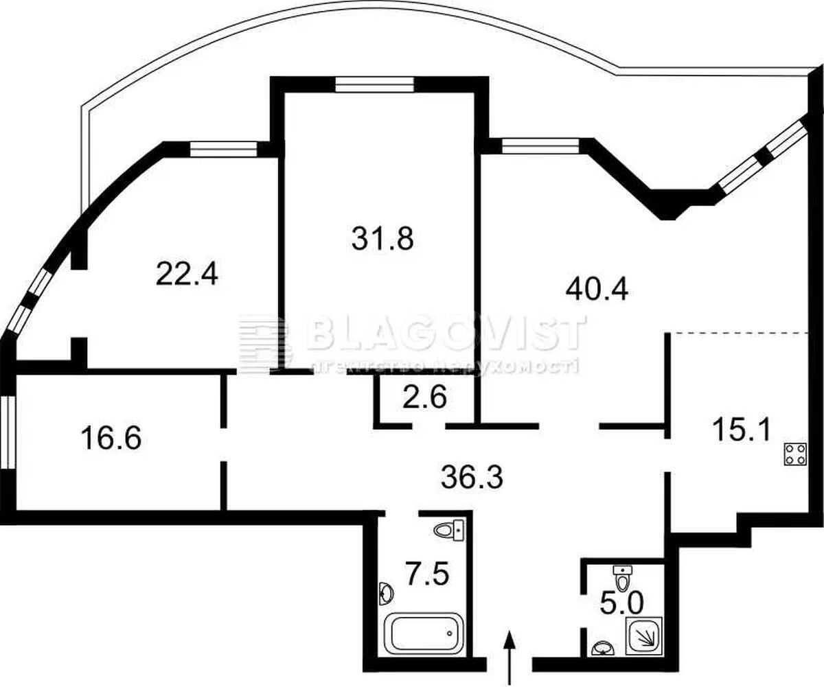
180 м2
General state
With repair
Price:
74 204 UAH
1 800 USD
Description of the object
Office space. Palace of Sports, Leo Tolstoy, Olympic, Ukrainian Heroes Square, center. Functional office in the city center. 180 sq.m. 6th floor 5 separate offices, reception, bathroom, balcony, kitchen, partially furnished. In the housing stock.
Additional Information