Trade object vul. Velyka Vasyl'kivs'ka 9/2, 161m2

  • Pecherskyi District vul. Velyka Vasyl'kivs'ka 9/2
  • Code: RC-218-250
  • Added by: 24.11.2025
  • Add to favorites
Market type
Secondary market
Street
vul. Velyka Vasyl'kivs'ka 9/2
Purpose
Trade Premise
Floor
8 Floor
Number of storeys
10 storey house
Total area
161 м2
General state
With repair
Price:
68 031 UAH
1 609 USD
  • AXIS Real Estate
  • AXIS Real Estate
  • AXIS Real Estate
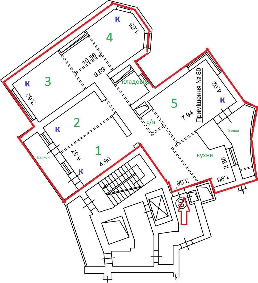
Description of the object

Office space. Under repair (we provide vacations). Layout: 5 offices, kitchen, bathroom, bathroom, storage room. 5 air conditioners are installed. Presentable entrance group. Autonomy: there is a generator for the entire building. Ground parking in the yard for 80 cars (for a fee).

Additional Information

Similar offers