Office vul. Jevgena Konoval'cja 36Б, 925m2

  • Pecherskyi District vul. Jevgena Konoval'cja 36Б
  • Code: SC-223-454
  • Added by: 31.05.2026
  • Add to favorites
Market type
Secondary market
Street
vul. Jevgena Konoval'cja 36Б
Purpose
Office Premise
Floor
1 Floor
Number of storeys
2 storey house
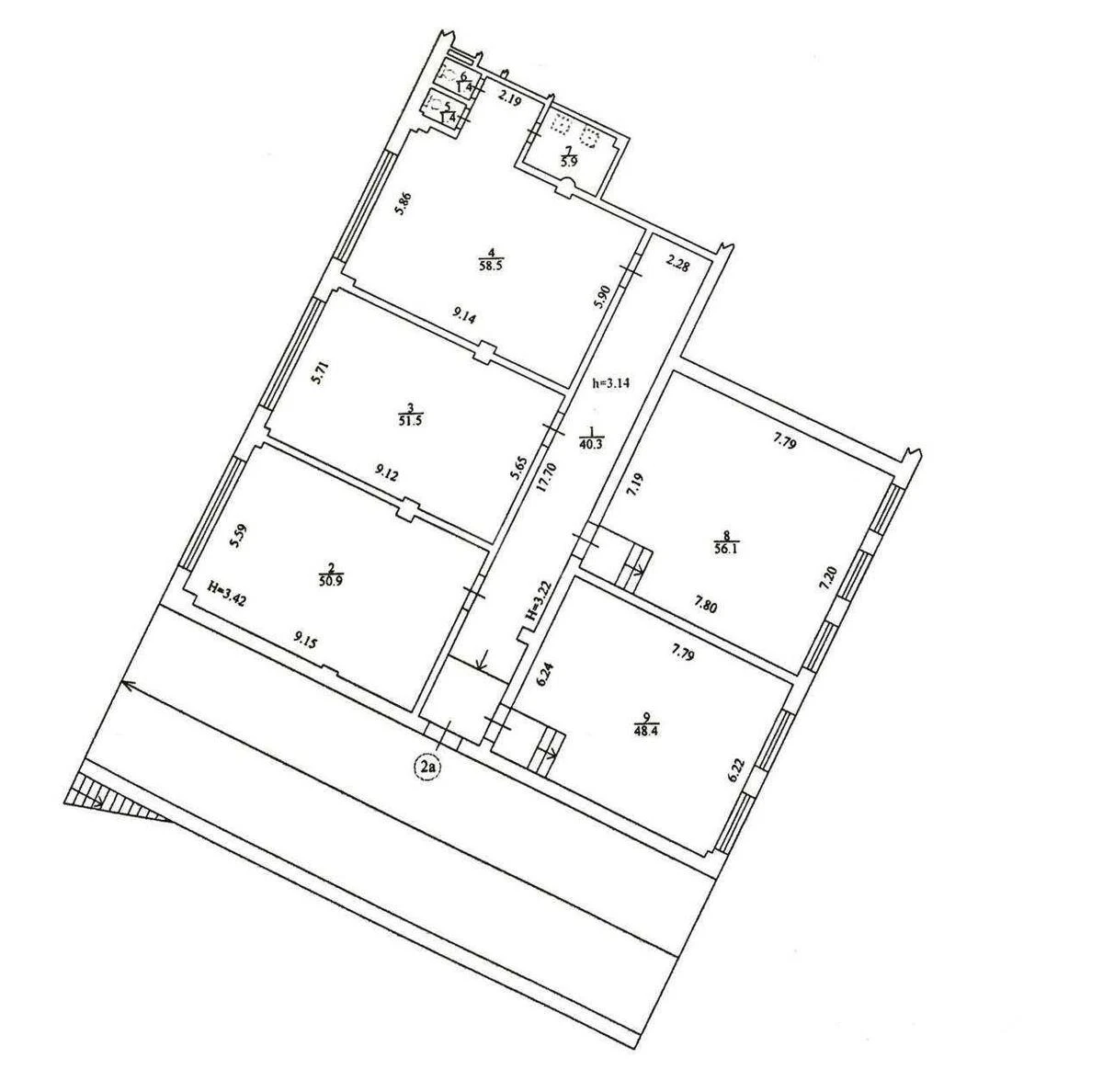
Total area
925 м2
General state
With repair
Price:
79 703 670 UAH
1 800 000 USD
Description of the object

Office space. Two floors, open-plan layout. Recently refurbished to a modern standard. Ceiling height: 3.8 m. Several toilets, a kitchen and utility rooms. Separate entrances. Brick walls. The office is equipped with a central air-conditioning system. Parking is available in front of the building.

Similar offers