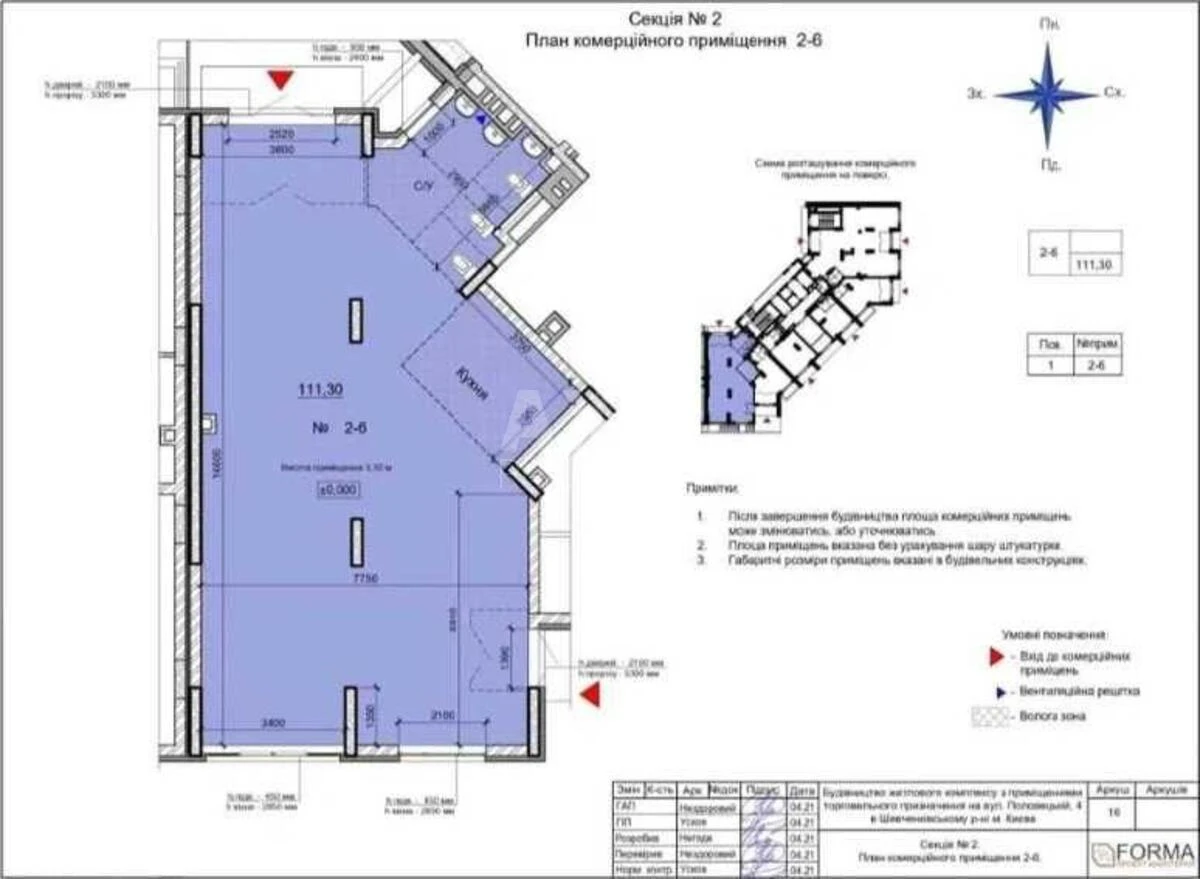
Объект торговли ул. Половецкая 4, 111м2

  • Шевченковский район ул. Половецкая 4
  • Код: RC-221-639
  • Добавлено: 24.02.2026
  • Добавить в избранное
Тип рынка
Вторичный рынок
Улица
ул. Половецкая 4
Призначення
Торговое помещение
Этаж
1 Этаж
Этажность
25 этажный дом
Общая площадь
111 м2
Общее состояние
Без ремонта
Цена:
110 000 грн.
2 541 USD
Описание объекта

Помещение свободного назначения. Расположено у центрального входа в парадную, фасадом на перекресток. Густонаселенный район, рядом АТБ. Активный трафик. 1 этаж, фасадный вход. Двустороннее, большие витрины. После строителей, каникулы. Все коммуникации, мокрые точки, 20 кВт.

Похожие предложения