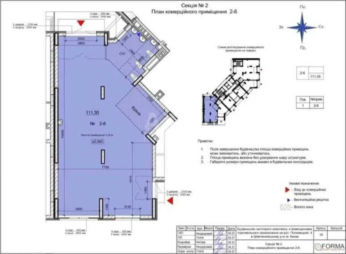
Об'єкт торгівлі вул. Половецька 4, 111м2

  • Шевченківський район вул. Половецька 4
  • Код: RC-221-639
  • Добавлено: 24.02.2026
  • Додати в обране
Тип ринку
Вторинний ринок
Вулиця
вул. Половецька 4
Назначение
Торгове приміщення
Поверх
1 Поверх
Поверховість
25 поверховий будинок
Загальна площа
111 м2
Загальний стан
Без ремонту
Ціна:
110 000 грн.
2 541 USD
Опис об'єкту

Приміщення вільного призначення. Розташоване біля центрального входу в парадне, фасадом на перехрестя. Густонаселений район, поряд АТБ. Активний трафік. 1 поверх, фасадний вхід. Двостороннє, великі вітрини. Після будівельників, канікули. Всі комунікації, мокрі точки, 20 кВт.

Схожі пропозиції