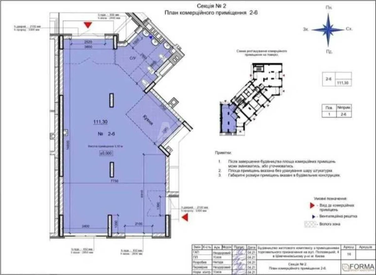
Trade object vul. Polovec'ka 4, 111m2

  • Shevchenkivskyi District vul. Polovec'ka 4
  • Code: RC-221-639
  • Added by: 24.02.2026
  • Add to favorites
Market type
Secondary market
Street
vul. Polovec'ka 4
Purpose
Trade Premise
Floor
1 Floor
Number of storeys
25 storey house
Total area
111 м2
General state
Without repair
Price:
110 000 UAH
2 541 USD
Description of the object

Premises for free use. Located near the central entrance to the front door, facing the intersection. Densely populated area, next to ATB. Active traffic. 1st floor, front entrance. Two-sided, large windows. After builders, holidays. All communications, wet points, 20 kW.

Similar offers