Продажа

Все фото (14)
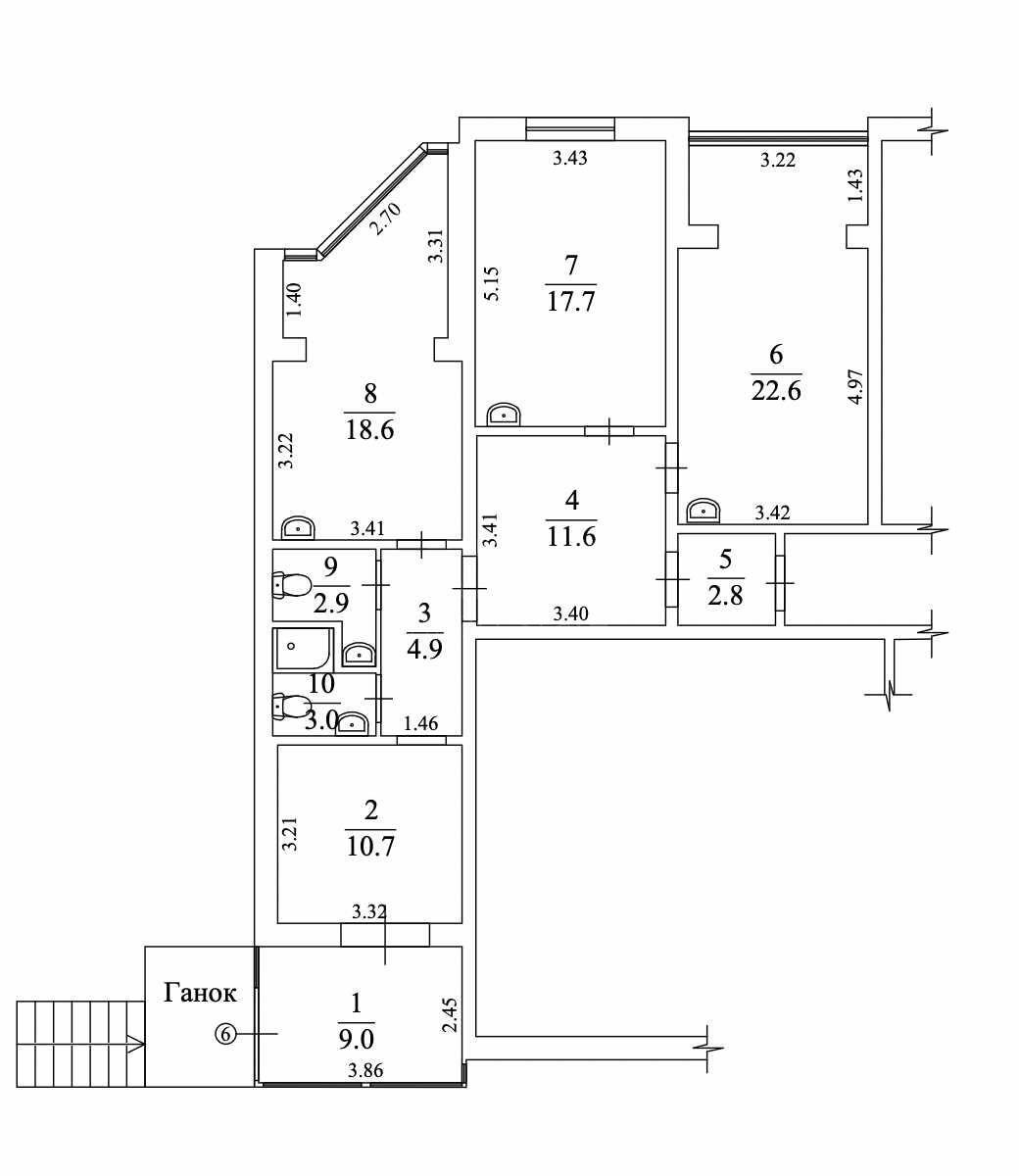
Объект торговли ул. Драгоманова 8, 100м2
- Добавить в избранное
-
Поделиться ссылкой
Тип рынка
Вторичный рынок
Улица
ул. Драгоманова 8
Призначення
Торговое помещение
Этаж
1 Этаж
Этажность
16 этажный дом
Общая площадь
100 м2
Общее состояние
С ремонтом
Цена:
8 680 317 грн.
210 000 USD
Описание объекта
Помещение свободного назначения. Помещение рассчитано под любую клинику, клинику косметологии, клинику гинекологии, медицинский центр, реабилитационный центр, стоматологию также можно под любую другую сферу деятельности. Об'ект после ремонта. В помещении сделан дорогой, качественный ремонт, установлены кондиционеры, поменяна сантехника, заменены все батареи, новая проводка, интернет. По всему об'екту установлено дорогое энергосберегающее светодиодное освещение.
Дополнительная информация