Продажа

Все фото (7)
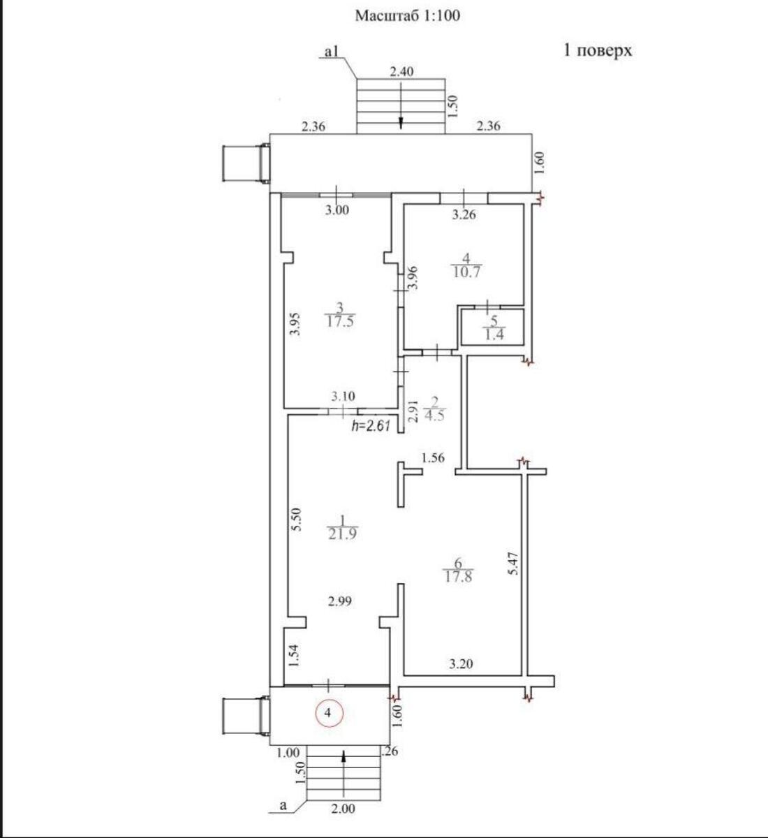
Объект торговли ул. Драгоманова 13/10, 75м2
- Добавить в избранное
-
Поделиться ссылкой
Тип рынка
Вторичный рынок
Улица
ул. Драгоманова 13/10
Призначення
Торговое помещение
Этаж
1 Этаж
Этажность
9 этажный дом
Общая площадь
75 м2
Общее состояние
С ремонтом
Цена:
8 886 991 грн.
215 000 USD
Описание объекта
Помещение свободного назначения. Помещение свободного назначения. 3 отдельных фасадных входа. Красная линия дороги, хорошо просматривается с большого перекрестка ул. А. Ахматовой и Драгоманова. Густонаселенный массив, постоянный пешеходный трафик. Помещение -40.8м2+33.6 кв.м. Коммуникации: электроэнергия 15-25 квт, вода, канализация, центральное отопление. Есть два стабильных арендатора с высокой арендной ставкой.
Дополнительная информация