Продажа

Все фото (5)
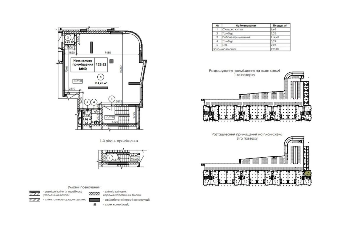
Объект торговли ул. Клеманская 7, 129м2
- Добавить в избранное
-
Поделиться ссылкой
Тип рынка
Вторичный рынок
Улица
ул. Клеманская 7
Призначення
Торговое помещение
Этаж
2 Этаж
Этажность
2 этажный дом
Общая площадь
129 м2
Общее состояние
Без ремонта
Цена:
7 233 598 грн.
175 000 USD
Описание объекта
ЖК Урловский-2, помещение свободного назначения. Высота потолка 3.5. м., витражные панорамные окна, цементно-песочная стяжка, медная разводка, радиаторы отопления, пожарная сигнализация, счетчики на этаже. Комплекс рассчитан на 5000 - 6000 жильцов, рядом проезжая дорога, что привлечет много клиентов к вашему фасадному офису.
Дополнительная информация