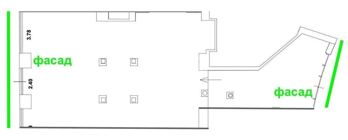
Объект сервиса ул. Бассейная 2А, 230м2

  • Печерский район ул. Бассейная 2А
  • Код: RC-221-631
  • Добавлено: 24.02.2026
  • Добавить в избранное
Тип рынка
Вторичный рынок
Улица
ул. Бассейная 2А
Призначення
Сервисный объект
Этаж
1 Этаж
Этажность
6 этажный дом
Общая площадь
230 м2
Общее состояние
С ремонтом
Цена:
298 626 грн.
6 900 USD
Описание объекта

Помещение свободного назначения. Комплекс расположен в самом сердце исторического и делового Киева. В районе с развитой инфраструктурой, городскими административными зданиями и удобной транспортной развязкой. Помещение под любой профиль: магазин, представительство, клиника, ресторан, офис и т.д. Локация имеет великолепный фасад на ул. Большая Васильковская/Крещатик с входной группой. Внутренний фасад с входной группой на пешеходную/прогулочную площадь комплекса.

Похожие предложения