Аренда

Все фото (10)
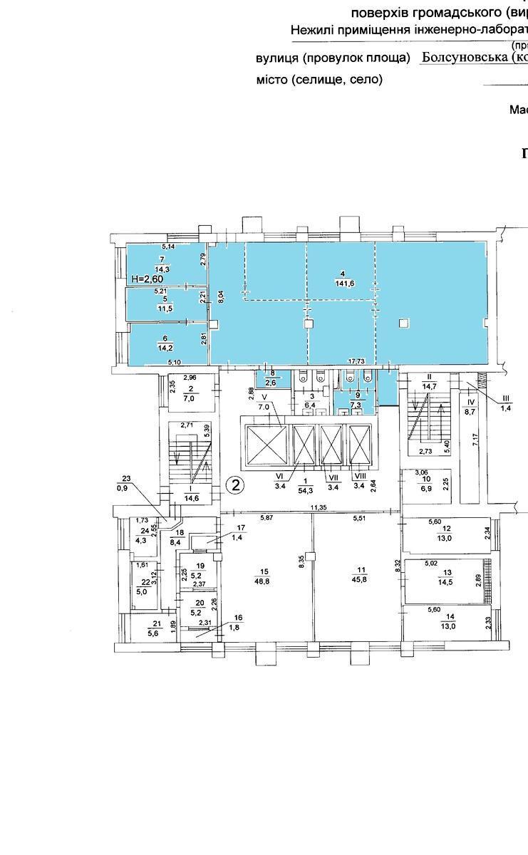
Офис ул. Болсуновская 8, 197м2
- Добавить в избранное
-
Поделиться ссылкой
Тип рынка
Вторичный рынок
Улица
ул. Болсуновская 8
Призначення
Офисное помещение
Этаж
2 Этаж
Этажность
10 этажный дом
Общая площадь
197 м2
Общее состояние
С ремонтом
Цена:
63 040 грн.
1 508 USD
Описание объекта
Офисное помещение. Презентабельный фасад и холл, лифты, пропускная система, офисный ремонт. Подойдет под любой вид деятельности. Развитая инфраструктура развита. Отличная транспортная развязка. Хорошая локация.
Дополнительная информация