Rent

All photos (10)
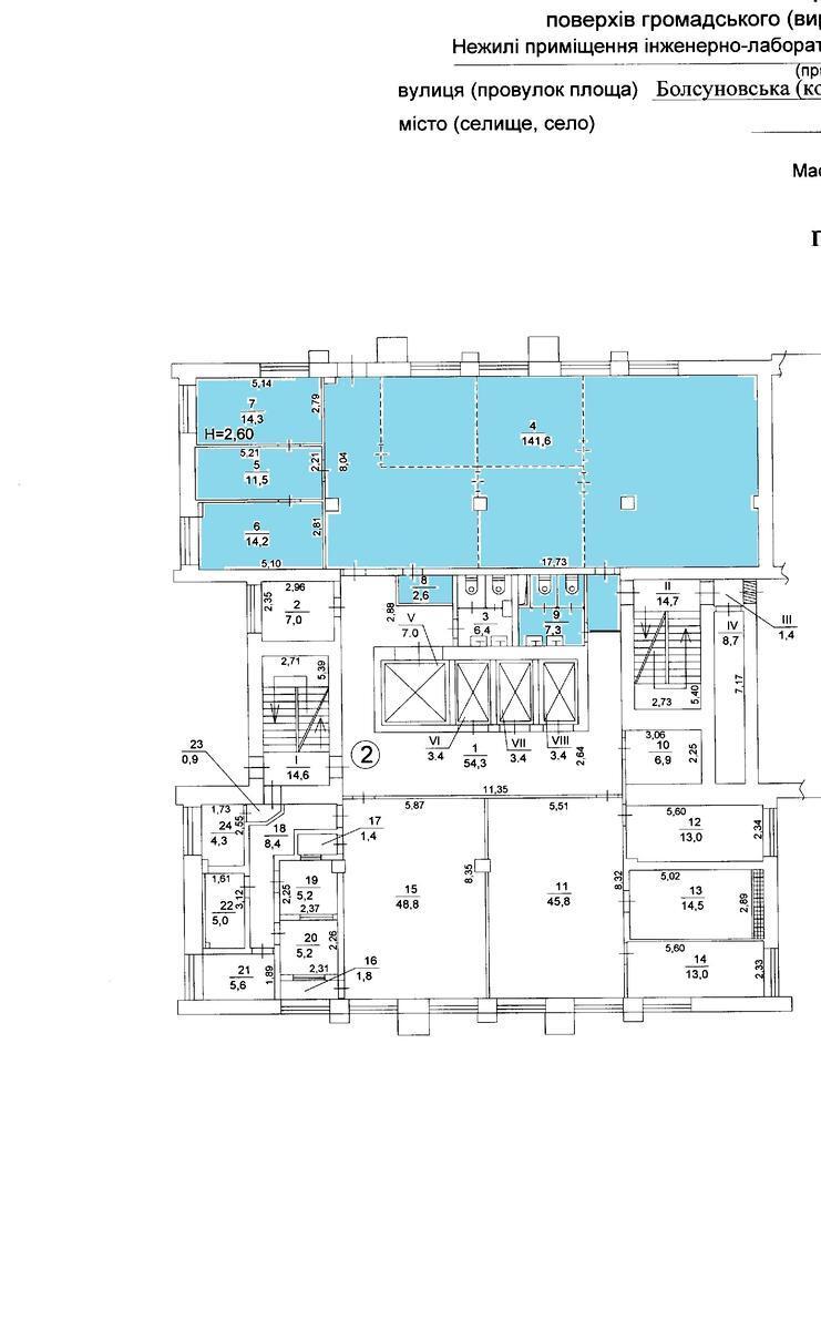
Office vul. Strutyns'kogo Sergija 8, 197m2
- Add to favorites
-
Share link
Market type
Secondary market
Street
vul. Strutyns'kogo Sergija 8
Purpose
Office Premise
Floor
2 Floor
Number of storeys
10 storey house
Total area
197 м2
General state
With repair
Price:
63 040 UAH
1 508 USD
Description of the object
Office space. Presentable facade and hall, elevators, access control system, office renovation. Suitable for any type of activity. Developed infrastructure. Excellent transport interchange. Good location.
Additional Information