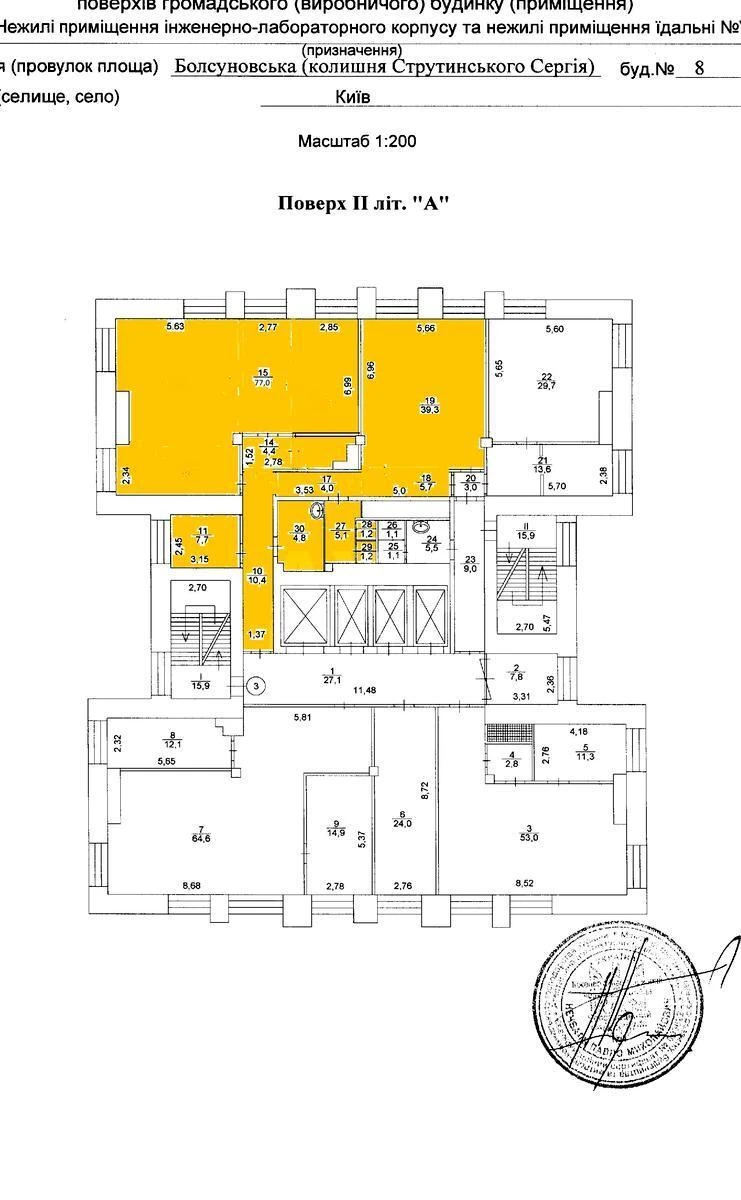
Офис ул. Болсуновская 8, 160м2

  • Печерский район ул. Болсуновская 8
  • Код: RC-217-469
  • Добавлено: 05.11.2025
  • Добавить в избранное
Тип рынка
Вторичный рынок
Улица
ул. Болсуновская 8
Призначення
Офисное помещение
Этаж
3 Этаж
Этажность
10 этажный дом
Общая площадь
160 м2
Общее состояние
С ремонтом
Цена:
51 456 грн.
1 223 USD
  • AXIS Real Estate
  • AXIS Real Estate
  • AXIS Real Estate
Описание объекта

Офисное помещение. В Бизнес-центре "БАСТИОН". Административное 10-этажное здание. Презентабельный фасад и холл, лифты, пропускная система, офисный ремонт. Развитая инфраструктура. Хорошая локация.

Дополнительная информация

Похожие предложения