Офис ул. Набережно-Луговая 12, 180м2

  • Подольский район ул. Набережно-Луговая 12
  • Код: RC-219-824
  • Добавлено: 25.02.2026
  • Добавить в избранное
Тип рынка
Вторичный рынок
Улица
ул. Набережно-Луговая 12
Призначення
Офисное помещение
Этаж
2 Этаж
Этажность
5 этажный дом
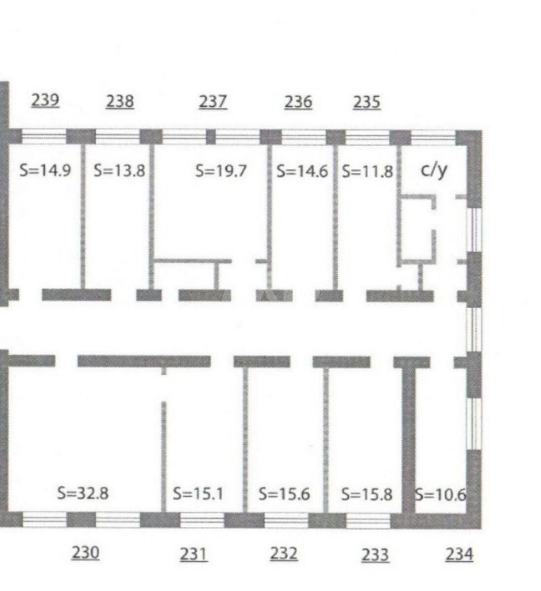
Общая площадь
180 м2
Общее состояние
С ремонтом
Цена:
77 957 грн.
1 800 USD
Описание объекта

Офисное помещение. Офис в 5 минутах ходьбы от Метро Тараса Шевченко. 2 этаж, 180м2. 9 кабинетов, 2 санузла. При необходимости, можно делать перепланировку. В офисе выполнен ремонт, заменены электрокоммуникации. До этого в помещении был благотворительный фонд, всю мебель могут убрать, и наоборот - добавить столы и стулья. Отопление входит в стоимость, дополнительно только вода и свет по счетчикам. Есть бесплатный паркинг перед зданием и также платная парковка (6-7 тысяч грн в год). Также есть укрытие и столовая с очень вкусной едой и демократичными ценами.

Похожие предложения