Аренда

Все фото (12)
Дoм ул. Добрый Путь, 270м2, город Киев
- Добавить в избранное
-
Поделиться ссылкой
Тип рынка
Вторичный рынок
Вид
Однокомнатная
Улица
ул. Добрый Путь 48
Соток
Количество комнат
5
Этажность
1 этажный дом
Общее состояние
С ремонтом
Цена:
60 000 грн.
1 454 USD
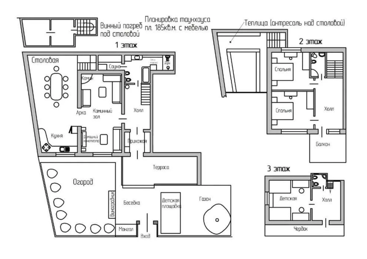
Описание объекта
5 комнатный дом. Дом расположен возле Голосеевского леса, отличное место для прогулок с детьми и животными. В 7 км от Крещатика. В доме 3 этажа, 3 спальни, каминный зал, кухня столовая, подвал. Есть гараж. Во всех комнатах есть кондиционеры, полностью укомплектованы мебелью. Уютный двор с барбекю, есть место под бассейн для детей. К дому подключен генератор. Грузная локация.
Дополнительная информация