Rent

All photos (12)
House vul. Dobryj Shljah, 270m2, Kyiv city
- Add to favorites
-
Share link
Market type
Secondary market
View
Single Room
Street
vul. Dobryj Shljah 48
Are
Number of rooms
5
Number of storeys
1 storey house
General state
With repair
Price:
60 000 UAH
1 453 USD
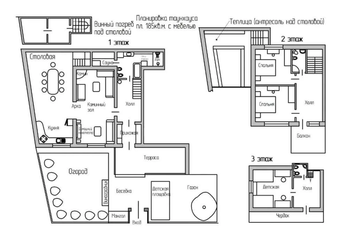
Description of the object
5 room house. The house is located near the Holosiivskyi forest, a great place for walking with children and animals. 7 km from Khreshchatyk. The house has 3 floors, 3 bedrooms, a fireplace room, a kitchen, a dining room, a basement. There is a garage. All rooms have air conditioning, fully equipped with furniture. A cozy courtyard with a barbecue, there is a place for a pool for children. A generator is connected to the house. Good location.
Additional Information