Оренда

Усі фото (12)
Дiм вул. Добрий Шлях, 270м2, місто Київ
- Додати в обране
-
Подiлитись посиланням
Тип ринку
Вторинний ринок
Вид
Однокімнатна
Вулиця
вул. Добрий Шлях 48
Соток
Кількість кімнат
5
Поверховість
1 поверховий будинок
Загальний стан
З ремонтом
Ціна:
60 000 грн.
1 435 USD
Опис об'єкту
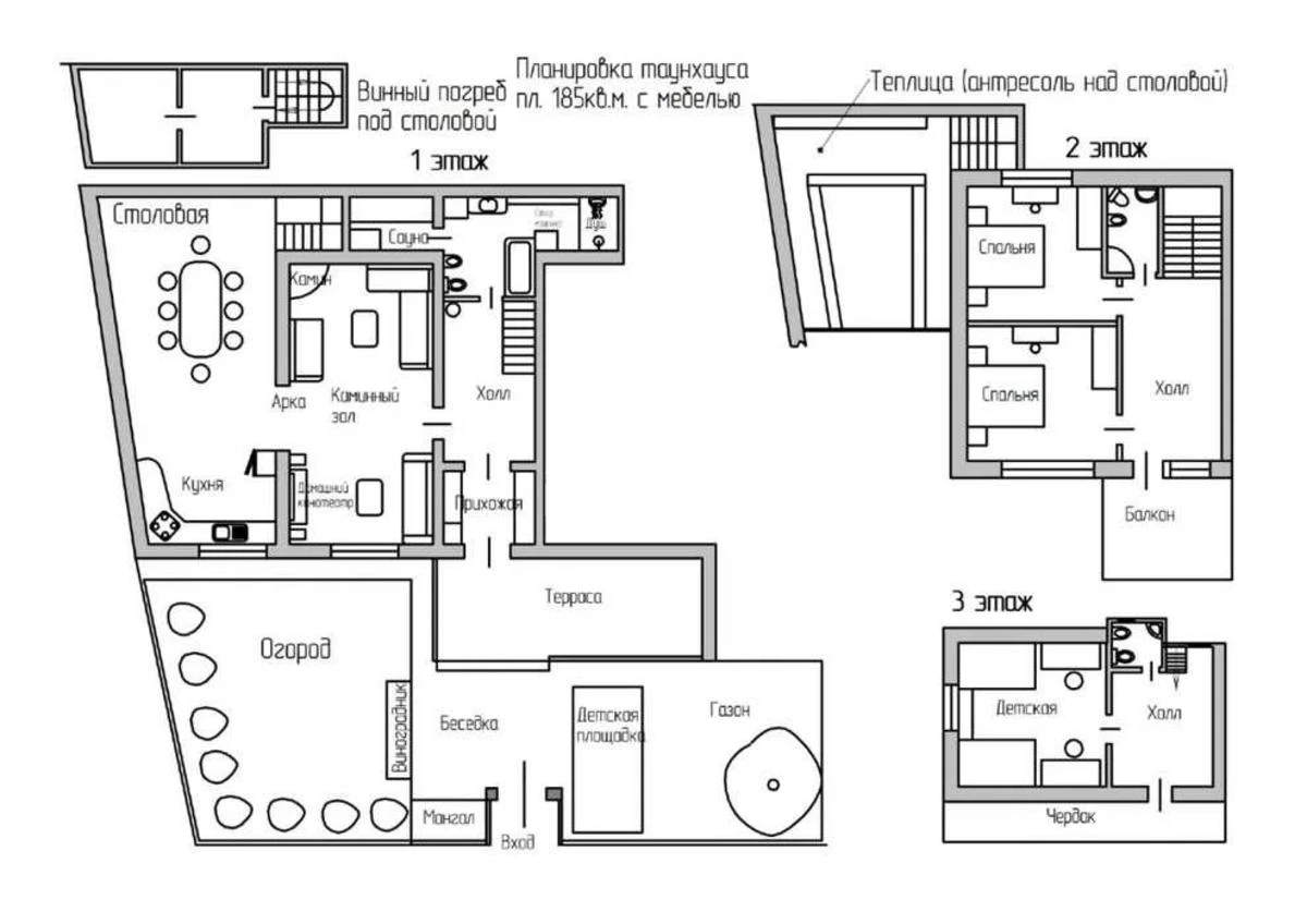
5 кімнатний будинок. Будинок розташований біля Голосіївського лісу, чудове місце для прогулянок з дітьми та тваринами. За 7 км від Хрещатика. У будинку 3 поверхи, 3 спальні, камінний зал, кухня їдальня, підвал. Є гараж. У всіх кімнатах є кондиціонери, повністю укомплектовані меблями. Затишний двір із барбекю, є місце під басейн для дітей. До будинку підключено генератор. Грузна локація.
Додаткова інформація