4к квартира ул. Салютная Два Б

  • Шевченковский район ул. Салютная Два Б
  • Код: SF-3-210-862
  • Добавлено: 25.05.2026
  • Добавить в избранное
Тип рынка
Первичный рынок
Улица
ул. Салютная Два Б
Количество комнат
4
Этаж
14 Этаж
Этажность
14 этажный дом
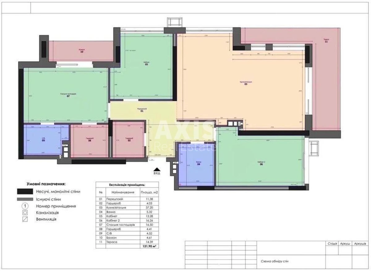
Общая площадь
132 м2
Общее состояние
Без ремонта
Цена:
14 825 906 грн.
334 900 USD
Описание объекта

ЖК «Файна Таун», 4-комнатная квартира. В сданном доме, где находится просторная кухня-гостиная с выходом на балкон с видом на город, три отдельные спальни (в главной спальне также есть выход на отдельный балкон), 2 санузла, 2 гардеробные. Это комплекс со своей собственной экосистемой, закрытый по периметру и под круглосуточной охраной. На территории обустроены зоны для отдыха, бассейн, спортивная площадка, много детских площадок. Рядом парк, рынок, супермаркет, удобное транспортное сообщение до ст.м. Нивки.

Похожие предложения