4k apartment vul. Saljutna Two B

  • Shevchenkivskyi District vul. Saljutna Two B
  • Code: SF-3-210-862
  • Added by: 25.05.2026
  • Add to favorites
Market type
Primary market
Street
vul. Saljutna Two B
Number of rooms
4
Floor
14 Floor
Number of storeys
14 storey house
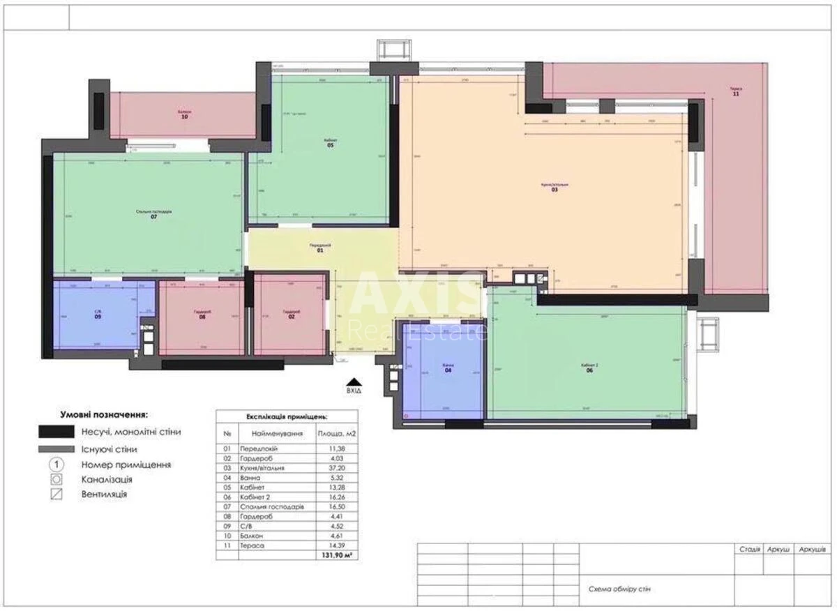
Total area
132 м2
General state
Without repair
Price:
14 825 906 UAH
334 900 USD
Description of the object

Faina Town residential complex, 4-bedroom flat. In a completed building, featuring a spacious kitchen-living room opening onto a balcony with city views, three separate bedrooms (the master bedroom also opens onto a private balcony), two bathrooms, and two walk-in wardrobes. This is a complex with its own ecosystem, enclosed along the perimeter and under 24/7 security. The grounds feature leisure areas, a swimming pool, a sports ground and numerous children’s play areas. Nearby are a park, a market, a supermarket and convenient transport links to Nyvky metro station.

Similar offers