2к квартира ул. Виктора Некрасова 2

  • Подольский район ул. Виктора Некрасова 2
  • Код: SF-3-249-743
  • Добавлено: 25.02.2026
  • Добавить в избранное
Тип рынка
Первичный рынок
Улица
ул. Виктора Некрасова 2
Количество комнат
2
Этаж
5 Этаж
Этажность
26 этажный дом
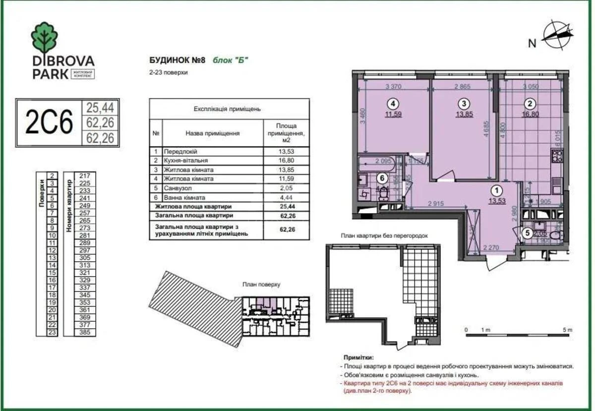
Общая площадь
62 м2
Общее состояние
Без ремонта
Цена:
3 551 402 грн.
82 000 USD
Описание объекта

ЖК Dibrova Park, 2 комнатная квартира. Дом 8 ввод в эксплуатацию 3 квартал 2026г. Вид из окна во двор. Восточная сторона. Состояние после строителей. На полу лазерная стяжка, проведено электричество, пожарная сигнализация, счетчики на холодную, горячую воду, электроэнергию, входные металлические, противопожарные двери, металлопластиковые окна Rehau с двухкамерным стеклопакетом.

Похожие предложения