2к квартира вул. Віктора Некрасова 2

  • Подільський район вул. Віктора Некрасова 2
  • Код: SF-3-249-743
  • Добавлено: 25.02.2026
  • Додати в обране
Тип ринку
Первинний ринок
Вулиця
вул. Віктора Некрасова 2
Кількість кімнат
2
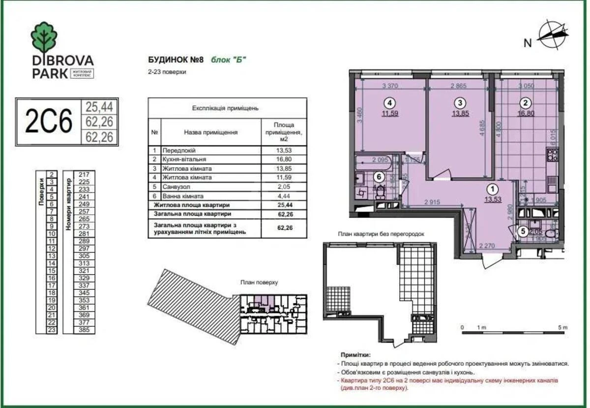
Поверх
5 Поверх
Поверховість
26 поверховий будинок
Загальна площа
62 м2
Загальний стан
Без ремонту
Ціна:
3 551 402 грн.
82 000 USD
Опис об'єкту

ЖК Dibrova Park, 2 кімнатна квартира. Будинок 8 введення у експлуатацію 3 квартал 2026р. Вид з вікна у двір. Східна сторона. Стан після будівельників. На підлозі лазерна стяжка, проведено електрика, пожежна сигналізація, лічильники на холодну, гарячу воду, електроенергію, вхідні металеві, протипожежні двері, металопластикові вікна Rehau із двокамерним склопакетом.

Схожі пропозиції