2k apartment vul. Viktora Nekrasova 2

  • Podilskyi District vul. Viktora Nekrasova 2
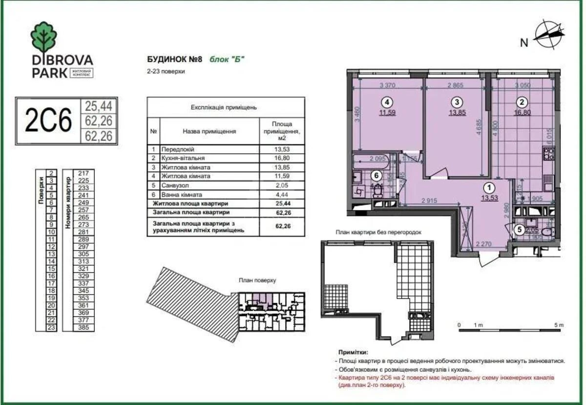
  • Code: SF-3-249-743
  • Added by: 25.02.2026
  • Add to favorites
Market type
Primary market
Street
vul. Viktora Nekrasova 2
Number of rooms
2
Floor
5 Floor
Number of storeys
26 storey house
Total area
62 м2
General state
Without repair
Price:
3 551 402 UAH
82 000 USD
Description of the object

Dibrova Park residential complex, 2-bedroom apartment. House 8 commissioning in the 3rd quarter of 2026. View from the window to the courtyard. The east side. Condition after the builders. Laser screed on the floor, electricity, fire alarm, meters for cold, hot water, electricity, metal entrance, fire doors, Rehau plastic windows with double-glazed windows.

Similar offers