2к квартира пр-т Европейского Союза 1

  • Подольский район пр-т Европейского Союза 1
  • Код: SF-3-249-726
  • Добавлено: 25.02.2026
  • Добавить в избранное
Тип рынка
Первичный рынок
Улица
пр-т Европейского Союза 1
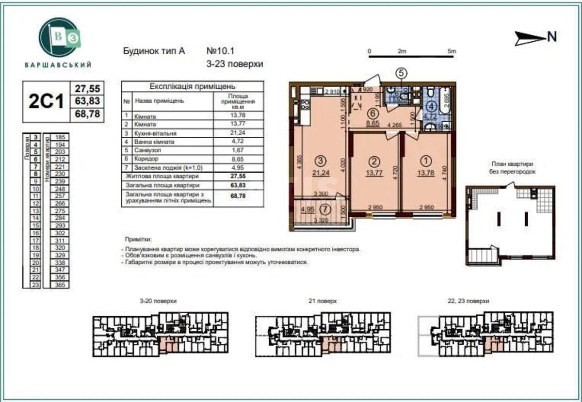
Количество комнат
2
Этаж
4 Этаж
Этажность
25 этажный дом
Общая площадь
69 м2
Общее состояние
Без ремонта
Цена:
4 071 119 грн.
94 000 USD
Описание объекта

ЖК Варшавский 3, 2 комнатная квартира. На полу лазерная стяжка, проведены каналы под электропроводку, пожарная сигнализация, счетчики на холодную, горячую воду, электроэнергию, входные металлические, противопожарные двери, металлопластиковые окна Rehau с двухкамерным стеклопакетом. В доме автономное электрическое питание.

Похожие предложения