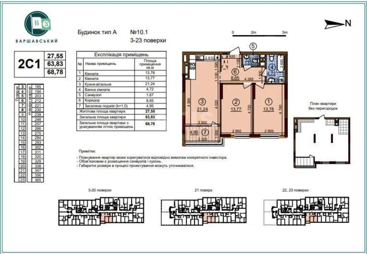
2к квартира пр-т Європейського Союзу 1

  • Подільський район пр-т Європейського Союзу 1
  • Код: SF-3-249-726
  • Добавлено: 25.02.2026
  • Додати в обране
Тип ринку
Первинний ринок
Вулиця
пр-т Європейського Союзу 1
Кількість кімнат
2
Поверх
4 Поверх
Поверховість
25 поверховий будинок
Загальна площа
69 м2
Загальний стан
Без ремонту
Ціна:
4 071 119 грн.
94 000 USD
Опис об'єкту

ЖК Варшавський 3, 2 кімнатна квартира. На підлозі лазерна стяжка, проведено канали під електропроводку, пожежна сигналізація, лічильники на холодну, гарячу воду, електроенергію, вхідні металеві, протипожежні двері, металопластикові вікна Rehau із двокамерним склопакетом. У будинку автономне електричне живлення.

Схожі пропозиції