2k apartment pr-t Yevropeyskoho Soyuzu 1

  • Podilskyi District pr-t Yevropeyskoho Soyuzu 1
  • Code: SF-3-249-726
  • Added by: 25.02.2026
  • Add to favorites
Market type
Primary market
Street
pr-t Yevropeyskoho Soyuzu 1
Number of rooms
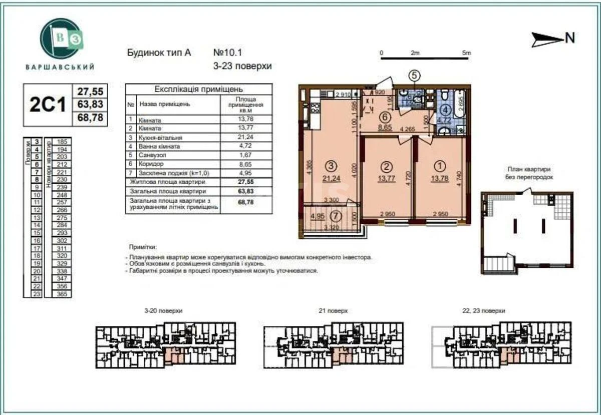
2
Floor
4 Floor
Number of storeys
25 storey house
Total area
69 м2
General state
Without repair
Price:
4 071 119 UAH
94 000 USD
Description of the object

RC Varshavsky 3, 2-room apartment. There is a laser screed on the floor, channels for electrical wiring, fire alarm, meters for cold, hot water, electricity, metal entrance, fire doors, Rehau plastic windows with double-glazed windows. The house has an autonomous electric power supply.

Similar offers