2к квартира пр-т Европейского Союза 1

  • Подольский район пр-т Европейского Союза 1
  • Код: SF-3-249-691
  • Добавлено: 25.02.2026
  • Добавить в избранное
Тип рынка
Первичный рынок
Улица
пр-т Европейского Союза 1
Количество комнат
2
Этаж
18 Этаж
Этажность
25 этажный дом
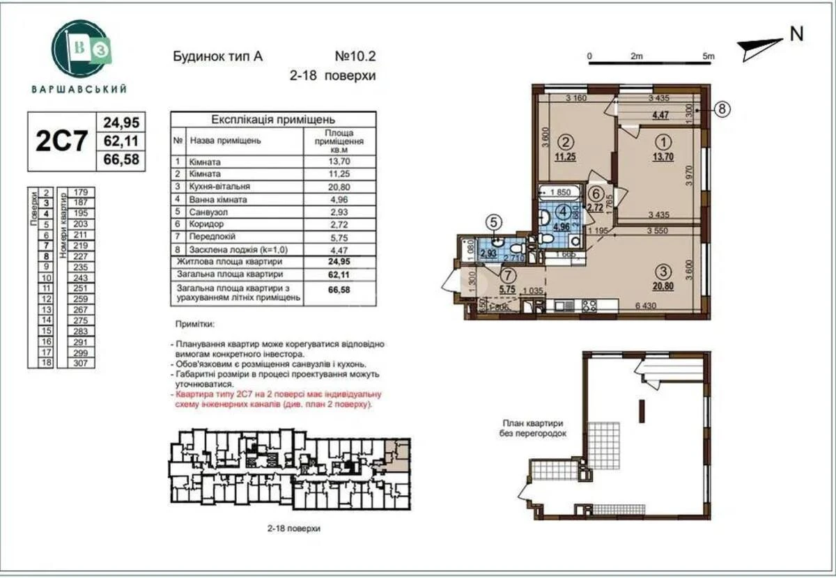
Общая площадь
66 м2
Общее состояние
Без ремонта
Цена:
3 681 331 грн.
85 000 USD
Описание объекта

ЖК Варшавский 3, 2 комнатная квартира. Состояние после строителей. На полу лазерная стяжка, проведено электричество, пожарная сигнализация, счетчики на холодную, горячую воду, электроэнергию, входные металлические, противопожарные двери, металлопластиковые окна Rehau с двухкамерным стеклопакетом. Застройщиком установлен генератор для резервного электрического питания.

Похожие предложения